Vlaemsche Hoeve 154
Beschikbaar
5251 TE Vlijmen
€375.000,00 Kosten koper
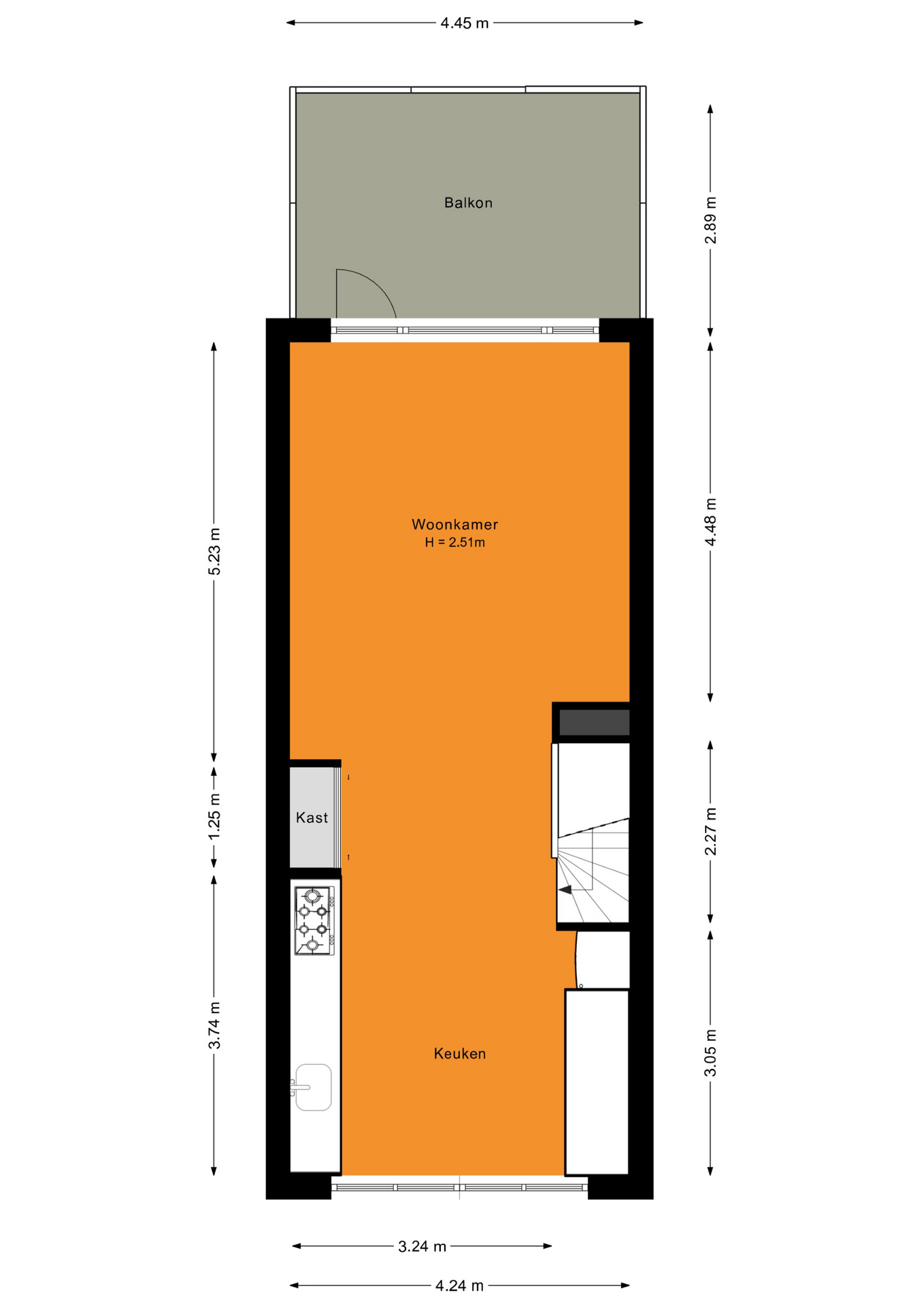
Wonen met het gevoel van een huis, maar het gemak van een appartement: deze maisonnette in Vlijmen is zo’n plek. Verdeeld over twee woonlagen biedt dit appartement verrassend veel ruimte, een prettige indeling en met energielabel A woon je ook nog eens heerlijk toekomstgericht. Op de eerste woonlaag vind je twee comfortabele slaapkamers, een nette badkamer en een apart toilet. Op de tweede woonlaag speelt het dagelijkse leven zich af. De ruime woonkamer voelt licht en open aan en loopt prettig over in de keuken: een fijne plek om te koken, te borrelen of gewoon samen de dag door te nemen.
Het royale balkon nodigt uit om buiten te zitten, met een kop koffie in de ochtendzon of een drankje aan het einde van de dag. De berging biedt extra opbergruimte voor fietsen en seizoensspullen. Dankzij de recente cv-ketel (december 2025) ben je bovendien verzekerd van een betrouwbare en energiezuinige installatie.
En de ligging? Die is ideaal. Op loopafstand van het centrum van Vlijmen, met winkels en voorzieningen binnen handbereik, terwijl je ook zó op de A59 zit. Openbaar vervoer is goed geregeld en voor een frisse neus hoef je niet ver te zoeken: mooie natuur ligt om de hoek. Een appartement dat voelt als een complete woning op een fijne, centrale plek.
Belangrijk om te weten:
- Maisonnette op een toplocatie in Vlijmen;
- Twee slaapkamers, een badkamer en apart toilet op de eerste woonlaag;
- Ruime woonkamer, open keuken en royaal balkon op de tweede woonlaag;
- Energielabel A;
- De cv-ketel is vernieuwd in december 2025;
- Er is een eigen berging aanwezig;
- Op loopafstand van het centrum van Vlijmen;
- Snelle aansluiting op de A59;
- Goed bereikbaar met openbaar vervoer;
- Mooie natuur en recreatiemogelijkheden in de directe omgeving;
- De VvE kosten bedragen € 165,21 per maand;
- Aanvaarding in overleg.
Deze informatie is door ons met de nodige zorgvuldigheid samengesteld. Onzerzijds wordt echter geen enkele aansprakelijkheid aanvaard voor enige onvolledigheid, onjuistheid of anderszins, dan wel de gevolgen daarvan. Alle opgegeven maten en oppervlakten zijn indicatief.
Het royale balkon nodigt uit om buiten te zitten, met een kop koffie in de ochtendzon of een drankje aan het einde van de dag. De berging biedt extra opbergruimte voor fietsen en seizoensspullen. Dankzij de recente cv-ketel (december 2025) ben je bovendien verzekerd van een betrouwbare en energiezuinige installatie.
En de ligging? Die is ideaal. Op loopafstand van het centrum van Vlijmen, met winkels en voorzieningen binnen handbereik, terwijl je ook zó op de A59 zit. Openbaar vervoer is goed geregeld en voor een frisse neus hoef je niet ver te zoeken: mooie natuur ligt om de hoek. Een appartement dat voelt als een complete woning op een fijne, centrale plek.
Belangrijk om te weten:
- Maisonnette op een toplocatie in Vlijmen;
- Twee slaapkamers, een badkamer en apart toilet op de eerste woonlaag;
- Ruime woonkamer, open keuken en royaal balkon op de tweede woonlaag;
- Energielabel A;
- De cv-ketel is vernieuwd in december 2025;
- Er is een eigen berging aanwezig;
- Op loopafstand van het centrum van Vlijmen;
- Snelle aansluiting op de A59;
- Goed bereikbaar met openbaar vervoer;
- Mooie natuur en recreatiemogelijkheden in de directe omgeving;
- De VvE kosten bedragen € 165,21 per maand;
- Aanvaarding in overleg.
Deze informatie is door ons met de nodige zorgvuldigheid samengesteld. Onzerzijds wordt echter geen enkele aansprakelijkheid aanvaard voor enige onvolledigheid, onjuistheid of anderszins, dan wel de gevolgen daarvan. Alle opgegeven maten en oppervlakten zijn indicatief.
Overdracht
- Status
- Beschikbaar
- Vraagprijs
- €375.000,00 Kosten koper
Bouwvorm
- Soort woning
- Maisonnette
- Type woning
- Bouwjaar
- 2001
- Bouwvorm
- Bestaande bouw
- Ligging
- Aan water, In woonwijk
Indeling
- Woonoppervlakte
- 88 m2
- Perceeloppervlakte
- 0 m2
- Inhoud
- 282 m3
- Aantal kamers
- 3
- Aantal slaapkamers
- 2
- Aantal woonlagen
- 2
Energie
- Energielabel
- A
Overig
- Tuin
- Geen tuin
- Schuur / berging
- Inpandig
- Garage
- Geen garage
- Parkeerfaciliteiten
- Openbaar parkeren
- Soort dak
- Plat dak
- Permanente bewoning
- Ja
- Huidig gebruik
- Woonruimte
- Huidige bestemming
- Woonruimte
In het kort
- Type woning
- Bouwjaar
- 2001
- Woonoppervlakte
- 88 m2
- Aantal kamers
- 3
Vragen over dit huis?
Esther
Als Persoonlijk adviseur wonen help ik je graag verder. Bel of mail me gerust.
In de buurt
Selecteer een filter
Mogelijk interessant
Meer informatie
Vlijmen
Een bezichtiging inplannen of een andere vraag?
Een goede voorbereiding...
Het is verstandig om antwoord te hebben op de volgende vragen als je een bezichtiging overweegt:
- Is je financieel advies up-to-date?
- Staat je eigen huis al in verkoop?
- Komt je aankoopmakelaar mee?
Heb je nog niet overal antwoord op? Geen zorgen, ik help je graag zodat jouw zoektocht zal slagen. Bel, Whatsapp of mail mij gerust, natuurlijk ook voor het plannen van een bezichtiging!
Heb je een vraag?
Bekijk de veelgestelde vragen
Download brochure
























