van Herlaerstraat 39
Verkocht
5271 HW Sint-Michielsgestel
€410.000,00 Kosten koper
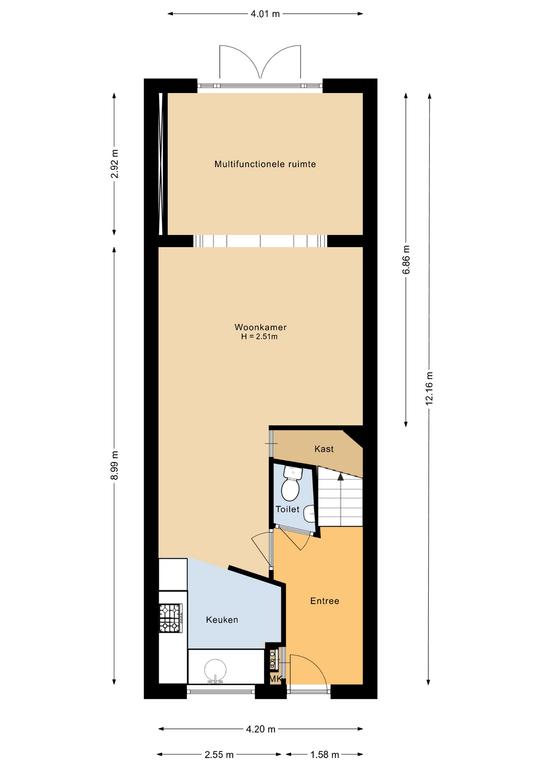
Welkom in deze gezellige tussenwoning, gelegen in de fijne wijk Theereheide in Sint-Michielsgestel! Dit huis biedt een fijn thuis, met onder andere veel licht en ruimte. Dankzij de grote woonkamer met een lichtbak geniet je optimaal van het zonnetje dat naar binnen schijnt. Daarnaast ben je voorzien van drie ruime slaapkamers en een praktische zolder, die je geheel naar wens kunt inrichten. Wordt dit bijvoorbeeld jouw nieuwe thuiskantoor? Laat je creativiteit maar de vrije loop. Stap naar buiten door de tuindeuren en geniet van de buitenlucht in jouw eigen tuin. Deze is onderhoudsvriendelijk opgezet en geeft je een heerlijke plek om te ontspannen.
De badkamer, momenteel wat gedateerd, biedt alle faciliteiten. Een frisse douche of een moment voor jezelf in een warm bad; hier kan het allemaal! Of je nu de badkamer aanpakt of deze zo laat, aan ruimte voor eigen ideeën is geen gebrek.
Je woont hier op een fijne plek, lekker rustig en toch op fietsafstand van het centrum van Sint-Michielsgestel. Zo heb je alle voorzieningen binnen handbereik, zoals de supermarkt, sportclubs en scholen. Pak je de auto? Dan sta je in no time op de A2 die je naar omliggende steden en dorpen brengt.
Belangrijk om te weten:
- Fijne tussenwoning in gewilde wijk Theereheide;
- Beschikt over drie ruime slaapkamers;
- Voorzien van vloerverwarming (m.u.v. de aanbouw) en energielabel B;
- Grote woonkamer met veel lichtinval;
- Nette, eenvoudige keuken;
- Ruime badkamer met o.a. een douche, bad en toilet;
- Onderhoudsvriendelijk opgezette tuin met praktische berging;
- Gelegen aan de rand van Sint-Michielsgestel en toch dicht bij het centrum en diverse voorzieningen;
- A2 snel bereikbaar;
- Aanvaarding in overleg.
Deze informatie is door ons met de nodige zorgvuldigheid samengesteld. Onzerzijds wordt echter geen enkele aansprakelijkheid aanvaard voor enige onvolledigheid, onjuistheid of anderszins, dan wel de gevolgen daarvan. Alle opgegeven maten en oppervlakten zijn indicatief.
De badkamer, momenteel wat gedateerd, biedt alle faciliteiten. Een frisse douche of een moment voor jezelf in een warm bad; hier kan het allemaal! Of je nu de badkamer aanpakt of deze zo laat, aan ruimte voor eigen ideeën is geen gebrek.
Je woont hier op een fijne plek, lekker rustig en toch op fietsafstand van het centrum van Sint-Michielsgestel. Zo heb je alle voorzieningen binnen handbereik, zoals de supermarkt, sportclubs en scholen. Pak je de auto? Dan sta je in no time op de A2 die je naar omliggende steden en dorpen brengt.
Belangrijk om te weten:
- Fijne tussenwoning in gewilde wijk Theereheide;
- Beschikt over drie ruime slaapkamers;
- Voorzien van vloerverwarming (m.u.v. de aanbouw) en energielabel B;
- Grote woonkamer met veel lichtinval;
- Nette, eenvoudige keuken;
- Ruime badkamer met o.a. een douche, bad en toilet;
- Onderhoudsvriendelijk opgezette tuin met praktische berging;
- Gelegen aan de rand van Sint-Michielsgestel en toch dicht bij het centrum en diverse voorzieningen;
- A2 snel bereikbaar;
- Aanvaarding in overleg.
Deze informatie is door ons met de nodige zorgvuldigheid samengesteld. Onzerzijds wordt echter geen enkele aansprakelijkheid aanvaard voor enige onvolledigheid, onjuistheid of anderszins, dan wel de gevolgen daarvan. Alle opgegeven maten en oppervlakten zijn indicatief.
Overdracht
- Status
- Verkocht
- Vraagprijs
- €410.000,00 Kosten koper
Bouwvorm
- Soort woning
- Eengezinswoning
- Type woning
- Tussenwoning
- Bouwjaar
- 1999
- Bouwvorm
- Bestaande bouw
- Ligging
- Aan rustige weg, In woonwijk
Indeling
- Woonoppervlakte
- 110 m2
- Perceeloppervlakte
- 117 m2
- Inhoud
- 382 m3
- Aantal kamers
- 5
- Aantal slaapkamers
- 3
- Aantal woonlagen
- 3
Energie
- Energielabel
- B
Overig
- Tuin
- Achtertuin, Voortuin
- Schuur / berging
- Vrijstaand steen
- Garage
- Geen garage
- Parkeerfaciliteiten
- Openbaar parkeren
- Soort dak
- Zadeldak
- Permanente bewoning
- Ja
- Huidig gebruik
- Woonruimte
- Huidige bestemming
- Woonruimte
In het kort
- Type woning
- Tussenwoning
- Bouwjaar
- 1999
- Woonoppervlakte
- 110 m2
- Aantal kamers
- 5
Vragen over dit huis?
Melissa
Als Persoonlijk adviseur wonen help ik je graag verder. Bel of mail me gerust.
In de buurt
Selecteer een filter
Mogelijk interessant
Meer informatie
De Meierij
Een keer bezichtigen of een vraag stellen?
Een goede voorbereiding...
Het is verstandig om antwoord te hebben op de volgende vragen als je een bezichtiging overweegt:
- Is je financieel advies up-to-date?
- Staat je eigen huis al in verkoop?
- Komt je aankoopmakelaar mee?
Heb je nog niet overal antwoord op? Geen zorgen, ik help je graag zodat jouw zoektocht zal slagen. Bel, Whatsapp of mail mij gerust, natuurlijk ook voor het plannen van een bezichtiging!
Heb je een vraag?
Bekijk de veelgestelde vragen
Download brochure

























