Frederik Hendriklaan 122
Verkocht onder voorbehoud
5212 BJ 's-Hertogenbosch
€715.000,00 Kosten koper
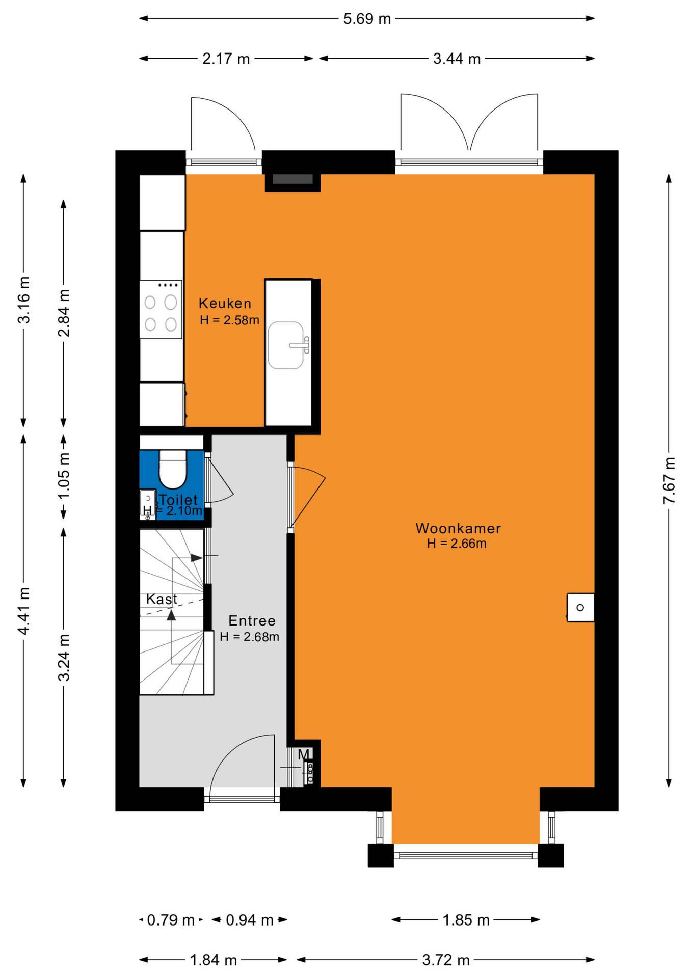
Gelegen aan de rand van de IJzeren Vrouw staat deze verrassend ruime en karakteristieke tussenwoning op je te wachten! Bovendien is het huis compleet aangepast aan de huidige maatstaven qua luxe en verduurzaming. De ruim opgezette en lichte woonkamer is voorzien van een eikenhouten visgraatvloer, lichte erker, sfeervolle houthaard en dubbele deuren naar de tuin. De moderne keuken staat in open verbinding met de eethoek en is uitgerust met een zwart Dekton werkblad en alle benodigde inbouwapparatuur. Ook de aansluiting voor een Quooker is voorbereid. Hier zijn alle ingrediënten aanwezig voor een heerlijk (t)huis.
Op de eerste verdieping vind je drie slaapkamers, een apart toilet én een moderne badkamer. De slaapkamers zijn allemaal op dezelfde wijze afgewerkt: eikenhouten vloeren, hoge plinten en strak gestucte wanden en plafonds. Bovendien geniet je dankzij grote raampartijen en vaste inbouwkasten van veel daglicht en genoeg opbergruimte. In de luxe badkamer kom je helemaal tot rust na een lange werkdag. Je vindt hier een inloopdouche, brede wastafel en een vrijstaand bad.
De ruime zolder beschikt over ongekende mogelijkheden. Dankzij de twee dakkapellen ervaar je hier een zee aan ruimte en lichtinval. Een slaapkamer, thuiswerkplek of hobbyruimte? Niets is te gek.
In de groene achtertuin is een ruim terras gecreëerd met een sfeervolle eethoek onder een pergola met prachtige blauweregen. Daarnaast vind je in de tuin een vijgenboom en plek voor een barbecue. Kortom: een heerlijke tuin om met vrienden en familie van te genieten. Tot slot vind je hier ook nog een zeer ruime stenen berging en directe toegang tot de afgesloten brandgang.
Het huis is gelegen in de zeer gewilde woonwijk de Vliert. Vanaf hier ben je zo in de bruisende Bossche binnenstad en ook zijn dagelijkse voorzieningen als scholen, kinderopvang, sportclubs, speelvelden, supermarkten en winkels dichtbij. Het prachtige Prins Hendrikpark bevindt zich eveneens op een steenworp afstand. En de bereikbaarheid? Ook uitstekend. Het Centraal Station, Station 's-Hertogenbosch Oost en uitvalswegen naar diverse snelwegen zijn snel bereikbaar.
Belangrijk om te weten:
- Verrassend ruime en karakteristieke tussenwoning;
- Compleet gemoderniseerd en verduurzaamd;
- Vernieuwde kozijnen en HR++ beglazing;
- Daken en spouwmuur geïsoleerd;
- Pannendak, dakkapellen en erker zijn gerenoveerd;
- Elektrische installaties (incl. meterkast) zijn vernieuwd;
- Nieuwe cv-ketel en (design) radiatoren;
- Houthaard is vernieuwd en het rookkanaal is volledig gerenoveerd;
- Luxe keuken voorzien van diverse gemakken;
- Strakke badkamer met inloopdouche en ligbad;
- Ruime zolder vol mogelijkheden;
- Vier fijne slaapkamers;
- Groene tuin gelegen op het noordwesten;
- Gewilde en populaire wijk op fietsafstand van het centrum;
- Aanvaarding in overleg.
Deze informatie is door ons met de nodige zorgvuldigheid samengesteld. Onzerzijds wordt echter geen enkele aansprakelijkheid aanvaard voor enige onvolledigheid, onjuistheid of anderszins, dan wel de gevolgen daarvan. Alle opgegeven maten en oppervlakten zijn indicatief.
Op de eerste verdieping vind je drie slaapkamers, een apart toilet én een moderne badkamer. De slaapkamers zijn allemaal op dezelfde wijze afgewerkt: eikenhouten vloeren, hoge plinten en strak gestucte wanden en plafonds. Bovendien geniet je dankzij grote raampartijen en vaste inbouwkasten van veel daglicht en genoeg opbergruimte. In de luxe badkamer kom je helemaal tot rust na een lange werkdag. Je vindt hier een inloopdouche, brede wastafel en een vrijstaand bad.
De ruime zolder beschikt over ongekende mogelijkheden. Dankzij de twee dakkapellen ervaar je hier een zee aan ruimte en lichtinval. Een slaapkamer, thuiswerkplek of hobbyruimte? Niets is te gek.
In de groene achtertuin is een ruim terras gecreëerd met een sfeervolle eethoek onder een pergola met prachtige blauweregen. Daarnaast vind je in de tuin een vijgenboom en plek voor een barbecue. Kortom: een heerlijke tuin om met vrienden en familie van te genieten. Tot slot vind je hier ook nog een zeer ruime stenen berging en directe toegang tot de afgesloten brandgang.
Het huis is gelegen in de zeer gewilde woonwijk de Vliert. Vanaf hier ben je zo in de bruisende Bossche binnenstad en ook zijn dagelijkse voorzieningen als scholen, kinderopvang, sportclubs, speelvelden, supermarkten en winkels dichtbij. Het prachtige Prins Hendrikpark bevindt zich eveneens op een steenworp afstand. En de bereikbaarheid? Ook uitstekend. Het Centraal Station, Station 's-Hertogenbosch Oost en uitvalswegen naar diverse snelwegen zijn snel bereikbaar.
Belangrijk om te weten:
- Verrassend ruime en karakteristieke tussenwoning;
- Compleet gemoderniseerd en verduurzaamd;
- Vernieuwde kozijnen en HR++ beglazing;
- Daken en spouwmuur geïsoleerd;
- Pannendak, dakkapellen en erker zijn gerenoveerd;
- Elektrische installaties (incl. meterkast) zijn vernieuwd;
- Nieuwe cv-ketel en (design) radiatoren;
- Houthaard is vernieuwd en het rookkanaal is volledig gerenoveerd;
- Luxe keuken voorzien van diverse gemakken;
- Strakke badkamer met inloopdouche en ligbad;
- Ruime zolder vol mogelijkheden;
- Vier fijne slaapkamers;
- Groene tuin gelegen op het noordwesten;
- Gewilde en populaire wijk op fietsafstand van het centrum;
- Aanvaarding in overleg.
Deze informatie is door ons met de nodige zorgvuldigheid samengesteld. Onzerzijds wordt echter geen enkele aansprakelijkheid aanvaard voor enige onvolledigheid, onjuistheid of anderszins, dan wel de gevolgen daarvan. Alle opgegeven maten en oppervlakten zijn indicatief.
Overdracht
- Status
- Verkocht onder voorbehoud
- Vraagprijs
- €715.000,00 Kosten koper
Bouwvorm
- Soort woning
- Eengezinswoning
- Type woning
- Tussenwoning
- Bouwjaar
- 1952
- Bouwvorm
- Bestaande bouw
- Ligging
- Aan rustige weg, In woonwijk
Indeling
- Woonoppervlakte
- 112 m2
- Perceeloppervlakte
- 154 m2
- Inhoud
- 389 m3
- Aantal kamers
- 5
- Aantal slaapkamers
- 4
- Aantal woonlagen
- 3
Energie
- Energielabel
- B
Overig
- Tuin
- Achtertuin, Voortuin
- Schuur / berging
- Vrijstaand steen
- Garage
- Geen garage
- Parkeerfaciliteiten
- Parkeervergunningen
- Soort dak
- Zadeldak
- Permanente bewoning
- Ja
- Huidig gebruik
- Woonruimte
- Huidige bestemming
- Woonruimte
In het kort
- Type woning
- Tussenwoning
- Bouwjaar
- 1952
- Woonoppervlakte
- 112 m2
- Aantal kamers
- 5
Vragen over dit huis?
Iris
Als Persoonlijk adviseur wonen help ik je graag verder. Bel of mail me gerust.
In de buurt
Selecteer een filter
Mogelijk interessant
Meer informatie
's Hertogenbosch
Keertje bezichtigen? Of een vraag stellen?
Een goede voorbereiding...
Het is verstandig om antwoord te hebben op de volgende vragen als je een bezichtiging overweegt:
- Is je financieel advies up-to-date?
- Staat je eigen huis al in verkoop?
- Komt je aankoopmakelaar mee?
Heb je nog niet overal antwoord op? Geen zorgen, ik help je graag zodat jouw zoektocht zal slagen. Bel, Whatsapp of mail mij gerust, natuurlijk ook voor het plannen van een bezichtiging!
Heb je een vraag?
Bekijk de veelgestelde vragen
Download brochure








































