Nieuwstraat 13
Verkocht onder voorbehoud
5271 AB Sint-Michielsgestel
€850.000,00 Kosten koper
Stap binnen in deze prachtige jaren ’30 twee-onder-een-kapwoning in Sint-Michielsgestel, waar karakter en modern wooncomfort naadloos samenkomen. Het huis, gebouwd in 1935, ademt nog altijd de charme van toen met zijn authentieke details, maar is het afgelopen jaar zorgvuldig gemoderniseerd. Met een woonoppervlak van maar liefst 205 m², vijf slaapkamers en een multifunctionele ruimte op de begane grond is dit een huis dat moeiteloos met je meegroeit.
De begane grond verrast meteen: een open indeling, luxe keuken (2025) met kookeiland en Quooker en vloerverwarming over de gehele benedenverdieping, inclusief hal en wc. Het nieuwe stuc- en schilderwerk geeft de ruimtes een frisse uitstraling en door de grote raampartijen komt het daglicht royaal naar binnen. Of je nu gezellig met het gezin kookt, vrienden ontvangt of thuiswerkt in de extra kamer, hier is elke dag een feestje.
Ook technisch is dit huis helemaal klaar voor de toekomst: een nieuwe cv-ketel (april 2025), twee vernieuwde meterkasten (en bedrading op de begane grond en eerste verdieping) en gerenoveerde toiletten. De zolder biedt nog volop mogelijkheden om naar eigen wens in te richten. Een extra slaapkamer, hobbyruimte of misschien wel een atelier. Buiten geniet je in de ruime achtertuin op het westen van lange zomeravonden en de kinderen kunnen er heerlijk spelen. Achter het huis is bovendien een eigen parkeerplaats en natuurlijk is er een garage aanwezig.
En dan de ligging: op loopafstand van het centrum met winkels, supermarkten en gezellige horeca. Ook diverse sportclubs en (middelbare) scholen zijn dichtbij. Bovendien ben je met de auto zo op de A2 of A59 en heb je zin in een dagje ’s-Hertogenbosch? Pak de fiets, het openbaar vervoer of de auto en je staat zo in de bourgondische binnenstad.
Belangrijk om te weten:
- Karakteristieke twee-onder-een-kapwoning in Sint-Michielsgestel;
- Authentieke jaren ’30 kenmerken (bouwjaar 1935);
- Afgelopen jaar compleet gerenoveerd en gemoderniseerd;
- De gehele benedenverdieping is voorzien van vloerverwarming (2025) incl. hal en toilet;
- Nieuwe cv-ketel geplaatst in april 2025;
- In 2025 is alle bedrading en aarding vernieuwd op de begane grond en eerste verdieping;
- Twee meterkasten volledig vernieuwd;
- Nieuw stuc- en schilderwerk op de begane grond en eerste verdieping;
- Mooie open, lichte indeling;
- Luxe keuken (2025) met kookeiland en Quooker;
- Aparte multifunctionele ruimte, ideaal als kantoor of speelkamer;
- Beide toiletten volledig gerenoveerd;
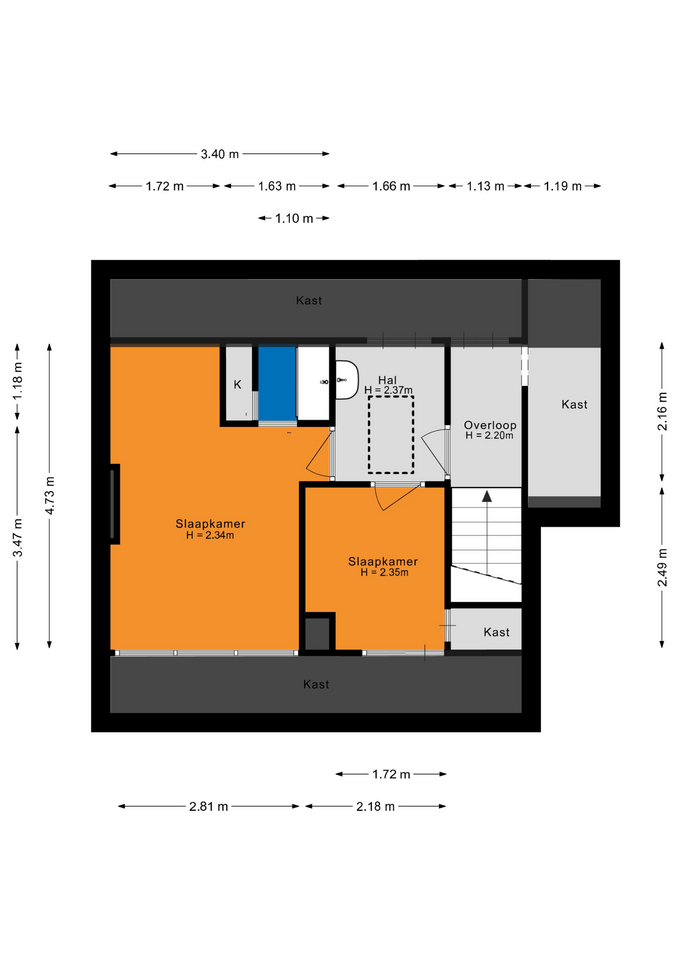
- Beschikt over vijf slaapkamers;
- Zolder nog helemaal naar eigen wens te maken;
- Ruime achtertuin op het westen;
- Garage én parkeerplaats achter het huis;
- Op loopafstand van alle dagelijkse voorzieningen;
- Aanvaarding in overleg.
Deze informatie is door ons met de nodige zorgvuldigheid samengesteld. Onzerzijds wordt echter geen enkele aansprakelijkheid aanvaard voor enige onvolledigheid, onjuistheid of anderszins, dan wel de gevolgen daarvan. Alle opgegeven maten en oppervlakten zijn indicatief.
De begane grond verrast meteen: een open indeling, luxe keuken (2025) met kookeiland en Quooker en vloerverwarming over de gehele benedenverdieping, inclusief hal en wc. Het nieuwe stuc- en schilderwerk geeft de ruimtes een frisse uitstraling en door de grote raampartijen komt het daglicht royaal naar binnen. Of je nu gezellig met het gezin kookt, vrienden ontvangt of thuiswerkt in de extra kamer, hier is elke dag een feestje.
Ook technisch is dit huis helemaal klaar voor de toekomst: een nieuwe cv-ketel (april 2025), twee vernieuwde meterkasten (en bedrading op de begane grond en eerste verdieping) en gerenoveerde toiletten. De zolder biedt nog volop mogelijkheden om naar eigen wens in te richten. Een extra slaapkamer, hobbyruimte of misschien wel een atelier. Buiten geniet je in de ruime achtertuin op het westen van lange zomeravonden en de kinderen kunnen er heerlijk spelen. Achter het huis is bovendien een eigen parkeerplaats en natuurlijk is er een garage aanwezig.
En dan de ligging: op loopafstand van het centrum met winkels, supermarkten en gezellige horeca. Ook diverse sportclubs en (middelbare) scholen zijn dichtbij. Bovendien ben je met de auto zo op de A2 of A59 en heb je zin in een dagje ’s-Hertogenbosch? Pak de fiets, het openbaar vervoer of de auto en je staat zo in de bourgondische binnenstad.
Belangrijk om te weten:
- Karakteristieke twee-onder-een-kapwoning in Sint-Michielsgestel;
- Authentieke jaren ’30 kenmerken (bouwjaar 1935);
- Afgelopen jaar compleet gerenoveerd en gemoderniseerd;
- De gehele benedenverdieping is voorzien van vloerverwarming (2025) incl. hal en toilet;
- Nieuwe cv-ketel geplaatst in april 2025;
- In 2025 is alle bedrading en aarding vernieuwd op de begane grond en eerste verdieping;
- Twee meterkasten volledig vernieuwd;
- Nieuw stuc- en schilderwerk op de begane grond en eerste verdieping;
- Mooie open, lichte indeling;
- Luxe keuken (2025) met kookeiland en Quooker;
- Aparte multifunctionele ruimte, ideaal als kantoor of speelkamer;
- Beide toiletten volledig gerenoveerd;
- Beschikt over vijf slaapkamers;
- Zolder nog helemaal naar eigen wens te maken;
- Ruime achtertuin op het westen;
- Garage én parkeerplaats achter het huis;
- Op loopafstand van alle dagelijkse voorzieningen;
- Aanvaarding in overleg.
Deze informatie is door ons met de nodige zorgvuldigheid samengesteld. Onzerzijds wordt echter geen enkele aansprakelijkheid aanvaard voor enige onvolledigheid, onjuistheid of anderszins, dan wel de gevolgen daarvan. Alle opgegeven maten en oppervlakten zijn indicatief.
Overdracht
- Status
- Verkocht onder voorbehoud
- Vraagprijs
- €850.000,00 Kosten koper
Bouwvorm
- Soort woning
- Eengezinswoning
- Type woning
- Twee onder een kapwoning
- Bouwjaar
- 1935
- Bouwvorm
- Bestaande bouw
- Ligging
- In woonwijk
Indeling
- Woonoppervlakte
- 205 m2
- Perceeloppervlakte
- 430 m2
- Inhoud
- 781 m3
- Aantal kamers
- 8
- Aantal slaapkamers
- 5
- Aantal woonlagen
- 4
Energie
- Energielabel
- D
Overig
- Tuin
- Achtertuin, Voortuin
- Schuur / berging
- Geen schuur / berging
- Garage
- Vrijstaand hout
- Parkeerfaciliteiten
- Openbaar parkeren, Op eigen terrein
- Soort dak
- Samengesteld dak
- Permanente bewoning
- Ja
- Huidig gebruik
- Woonruimte
- Huidige bestemming
- Woonruimte
In het kort
- Type woning
- Twee onder een kapwoning
- Bouwjaar
- 1935
- Woonoppervlakte
- 205 m2
- Aantal kamers
- 8
Vragen over dit huis?
Melissa
Als Persoonlijk adviseur wonen help ik je graag verder. Bel of mail me gerust.
In de buurt
Selecteer een filter
Mogelijk interessant
Meer informatie
De Meierij
Een keer bezichtigen of een vraag stellen?
Een goede voorbereiding...
Het is verstandig om antwoord te hebben op de volgende vragen als je een bezichtiging overweegt:
- Is je financieel advies up-to-date?
- Staat je eigen huis al in verkoop?
- Komt je aankoopmakelaar mee?
Heb je nog niet overal antwoord op? Geen zorgen, ik help je graag zodat jouw zoektocht zal slagen. Bel, Whatsapp of mail mij gerust, natuurlijk ook voor het plannen van een bezichtiging!
Heb je een vraag?
Bekijk de veelgestelde vragen
Download brochure
















































