Elisabeth Bas 13
Verkocht
5281 HL Boxtel
€479.000,00 Kosten koper
Ben je op zoek naar een fijn huis met volop mogelijkheden? Dan is deze geschakelde woning in Boxtel iets voor jou! Dit is een huis waar licht, ruimte en potentie samenkomen en waar je nog helemaal je eigen stempel op kunt drukken. De grote ramen aan de voorzijde zorgen voor voldoende daglicht, terwijl de serre met schuifdeuren verbinding tussen binnen en buiten maakt. De zonnige tuin op het zuiden biedt niet alleen veel privacy, het is ook de perfecte plek om te ontspannen in de buitenlucht. Hier en daar wordt nog wat van je aandacht en creativiteit gevraagd, dus doe alvast inspiratie op!
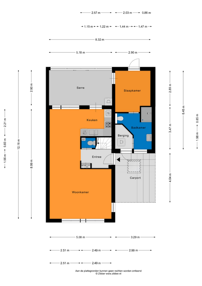
Beneden vind je de badkamer, waardoor je boven alle ruimte hebt die je wenst. De drie slaapkamers zijn al afgewerkt en de vierde kamer boven, misschien wel jouw nieuwe thuiskantoor, is nog naar smaak te maken. Dankzij de 10 zonnepanelen (uit 2023), vloerverwarming op de eerste verdieping en energielabel B hoef jij je geen zorgen te maken over je energierekening en zit je er lekker warm bij.
De ligging is top! Je woont in een rustige straat en hebt toch alles dichtbij. Zo vind je het centrum van Boxtel, het NS-station, diverse winkels, horeca en supermarkten allemaal op loopafstand. En dankzij de ideale ligging van Boxtel in de driehoek Eindhoven – Tilburg – ’s-Hertogenbosch én de snelle bereikbaarheid van de A2, ben je in no time op je bestemming.
Belangrijk om te weten:
- Geschakelde woning in een rustige straat in Boxtel;
- Eerste verdieping (deels) verbouwd, begane grond vraagt nog wat van je aandacht;
- Beschikt over drie slaapkamers en de vierde kamer moet nog afgemaakt worden;
- Veel licht in de woonkamer;
- Serre met schuifdeuren biedt toegang tot de achtertuin;
- Achtertuin gelegen op het zuiden en met veel privacy;
- Badkamer op de begane grond;
- Praktische bijkeuken;
- 10 zonnepanelen, nieuwe vloerverwarming op de eerste verdieping en energielabel B;
- Op loopafstand gelegen van o.a. het centrum, diverse winkels, horeca en supermarkten;
- Kasteel Stapelen dichtbij voor een mooie wandeling;
- NS-station op loopafstand;
- A2 snel bereikbaar;
- Boxtel is ideaal gelegen in de driehoek Eindhoven – Tilburg – ’s-Hertogenbosch;
- Aanvaarding in overleg.
Deze informatie is door ons met de nodige zorgvuldigheid samengesteld. Onzerzijds wordt echter geen enkele aansprakelijkheid aanvaard voor enige onvolledigheid, onjuistheid of anderszins, dan wel de gevolgen daarvan. Alle opgegeven maten en oppervlakten zijn indicatief.
Beneden vind je de badkamer, waardoor je boven alle ruimte hebt die je wenst. De drie slaapkamers zijn al afgewerkt en de vierde kamer boven, misschien wel jouw nieuwe thuiskantoor, is nog naar smaak te maken. Dankzij de 10 zonnepanelen (uit 2023), vloerverwarming op de eerste verdieping en energielabel B hoef jij je geen zorgen te maken over je energierekening en zit je er lekker warm bij.
De ligging is top! Je woont in een rustige straat en hebt toch alles dichtbij. Zo vind je het centrum van Boxtel, het NS-station, diverse winkels, horeca en supermarkten allemaal op loopafstand. En dankzij de ideale ligging van Boxtel in de driehoek Eindhoven – Tilburg – ’s-Hertogenbosch én de snelle bereikbaarheid van de A2, ben je in no time op je bestemming.
Belangrijk om te weten:
- Geschakelde woning in een rustige straat in Boxtel;
- Eerste verdieping (deels) verbouwd, begane grond vraagt nog wat van je aandacht;
- Beschikt over drie slaapkamers en de vierde kamer moet nog afgemaakt worden;
- Veel licht in de woonkamer;
- Serre met schuifdeuren biedt toegang tot de achtertuin;
- Achtertuin gelegen op het zuiden en met veel privacy;
- Badkamer op de begane grond;
- Praktische bijkeuken;
- 10 zonnepanelen, nieuwe vloerverwarming op de eerste verdieping en energielabel B;
- Op loopafstand gelegen van o.a. het centrum, diverse winkels, horeca en supermarkten;
- Kasteel Stapelen dichtbij voor een mooie wandeling;
- NS-station op loopafstand;
- A2 snel bereikbaar;
- Boxtel is ideaal gelegen in de driehoek Eindhoven – Tilburg – ’s-Hertogenbosch;
- Aanvaarding in overleg.
Deze informatie is door ons met de nodige zorgvuldigheid samengesteld. Onzerzijds wordt echter geen enkele aansprakelijkheid aanvaard voor enige onvolledigheid, onjuistheid of anderszins, dan wel de gevolgen daarvan. Alle opgegeven maten en oppervlakten zijn indicatief.
Overdracht
- Status
- Verkocht
- Vraagprijs
- €479.000,00 Kosten koper
Bouwvorm
- Soort woning
- Eengezinswoning
- Type woning
- Geschakelde woning
- Bouwjaar
- 1993
- Bouwvorm
- Bestaande bouw
- Ligging
- Aan rustige weg, In woonwijk
Indeling
- Woonoppervlakte
- 113 m2
- Perceeloppervlakte
- 212 m2
- Inhoud
- 464 m3
- Aantal kamers
- 5
- Aantal slaapkamers
- 4
- Aantal woonlagen
- 3
Energie
- Energielabel
- B
Overig
- Tuin
- Achtertuin, Voortuin
- Schuur / berging
- Geen schuur / berging
- Garage
- Geen garage
- Parkeerfaciliteiten
- Openbaar parkeren, Op eigen terrein
- Soort dak
- Lessenaardak
- Permanente bewoning
- Ja
- Huidig gebruik
- Woonruimte
- Huidige bestemming
- Woonruimte
In het kort
- Type woning
- Geschakelde woning
- Bouwjaar
- 1993
- Woonoppervlakte
- 113 m2
- Aantal kamers
- 5
Vragen over dit huis?
Iris
Als Persoonlijk adviseur wonen help ik je graag verder. Bel of mail me gerust.
In de buurt
Selecteer een filter
Mogelijk interessant
Meer informatie
Boxtel
Een keertje bezichtigen?
Een goede voorbereiding...
Het is verstandig om antwoord te hebben op de volgende vragen als je een bezichtiging overweegt:
- Is je financieel advies up-to-date?
- Staat je eigen huis al in verkoop?
- Komt je aankoopmakelaar mee?
Heb je nog niet overal antwoord op? Geen zorgen, ik help je graag zodat jouw zoektocht zal slagen. Bel, Whatsapp of mail mij gerust, natuurlijk ook voor het plannen van een bezichtiging!
Heb je een vraag?
Bekijk de veelgestelde vragen
Download brochure





















