Adviesgesprek aanvragen? 0416 - 344 944

Haven 16 Beschikbaar
5161 PB Sprang-Capelle

€499.000,00 Kosten koper
Wat zijn mijn maandlasten
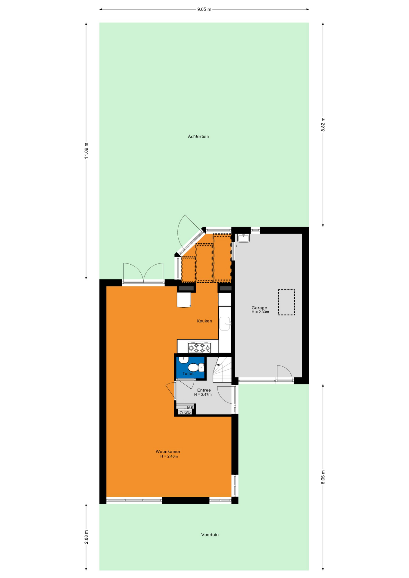
Stap binnen in deze fijne twee-onder-een-kapwoning, gelegen op een unieke locatie in Sprang-Capelle. Gelegen bij jachthaven Aquepelle beschik je over drie slaapkamers, een tuin op het zuiden en een fijne indeling. De grote open leefruimte vormt het hart van het huis, met genoeg ruimte voor een lange eettafel of gezellige zithoek waar je aan het eind van de dag lekker neerploft. De nette keuken in L-opstelling biedt veel ruimte en is van alle gemakken voorzien, ideaal voor kookliefhebbers. Met drie slaapkamers is er voor iedereen een plekje. Daarnaast biedt de ruime zolder ook nog eindeloze mogelijkheden, een extra slaapkamer of thuiswerkplek; hier kan het allemaal.

De zonnige achtertuin op het zuiden is een heerlijke plek om tot rust te komen. Dankzij de gunstige ligging geniet je hier de hele dag van de zon, terwijl er ook genoeg ruimte is voor een loungeset of een gezellige eettafel voor lange zomeravonden. De aangebouwde garage maakt het geheel compleet en biedt niet alleen ruimte voor de auto, maar ook voor fietsen, gereedschap of extra opslag.

De ligging van deze woning is echt bijzonder. Direct aan jachthaven Aquapelle, met zo’n 150 vaste ligplaatsen en uitgebreide faciliteiten zoals wifi, sanitair en een wasserette, woon je hier op een plek die perfect is voor watersportliefhebbers en iedereen die graag het water opgaat richting de Biesbosch, Bergsche Maas of Waal-Gorinchem. Daarnaast profiteer je van de ideale verbindingen: de A59 bereik je in slechts twee minuten, en binnen een kwartier rijden sta je in het bruisende centrum van Breda of ’s-Hertogenbosch. Een unieke combinatie van water, natuur en bereikbaarheid, midden in een prachtige omgeving waar je elke dag dat vakantiegevoel ervaart.

Belangrijk om te weten:
- Sfeervolle tweekapper op een unieke locatie in Sprang-Capelle;
- Open leefruimte op de begane grond;
- Goed geïsoleerd en beschikt over energielabel B;
- Open keuken met toegang tot de tuin;
- Drie slaapkamers en zolder met de mogelijkheid tot een vierde slaapkamer;
- Fijne tuin op het zuiden;
- Eigen oprit en garage;
- De garage is voorzien van elektra, water, verwarming en eigen vliering;
- Gelegen aan jachthaven Aquapelle;
- A59 bereikbaar in twee minuten;
- Uniek gelegen tussen het water en de bossen;
- Aanvaarding in overleg.

Deze informatie is door ons met de nodige zorgvuldigheid samengesteld. Onzerzijds wordt echter geen enkele aansprakelijkheid aanvaard voor enige onvolledigheid, onjuistheid of anderszins, dan wel de gevolgen daarvan. Alle opgegeven maten en oppervlakten zijn indicatief.
Overdracht
Status
Beschikbaar
Vraagprijs
€499.000,00 Kosten koper
Bouwvorm
Soort woning
Eengezinswoning
Type woning
Twee onder een kapwoning
Bouwjaar
1994
Bouwvorm
Bestaande bouw
Ligging
Aan rustige weg, Aan vaarwater
Indeling
Woonoppervlakte
101 m2
Perceeloppervlakte
209 m2
Inhoud
516 m3
Aantal kamers
5
Aantal slaapkamers
3
Aantal woonlagen
3
Energie
Energielabel
B
Overig
Tuin
Achtertuin, Voortuin
Schuur / berging
Geen schuur / berging
Garage
Aangebouwd steen
Parkeerfaciliteiten
Op eigen terrein
Soort dak
Zadeldak
Permanente bewoning
Ja
Huidig gebruik
Woonruimte
Huidige bestemming
Woonruimte
In het kort
Type woning
Twee onder een kapwoning
Bouwjaar
1994
Woonoppervlakte
101 m2
Aantal kamers
5

Vragen over dit huis?

Petra
Petra

Als Persoonlijk adviseur wonen help ik je graag verder. Bel of mail me gerust.

Mail mij
In de buurt
Selecteer een filter
Mogelijk interessant
Meer informatie
Waalwijk
Waalwijk