Europalaan 25
Verkocht onder voorbehoud
5152 NE Drunen
€435.000,00 Kosten koper
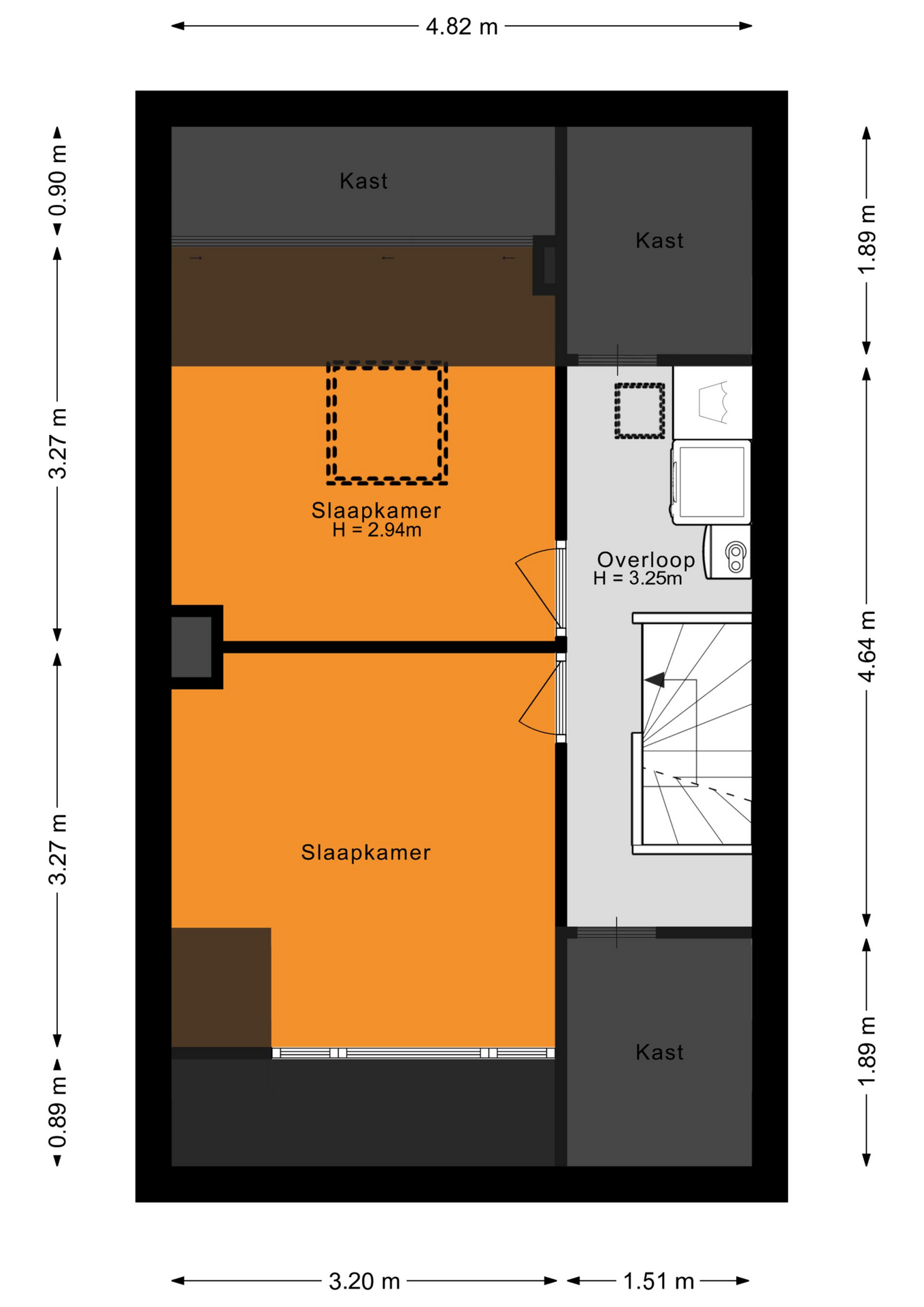
Stap binnen in deze fijne tussenwoning en ontdek een plek waar ruimte, licht en comfort moeiteloos samenkomen. De ruime leefruimte met open keuken vormt het hart van het huis: een uitnodigende plek waar je gezellig kunt tafelen, samen kunt koken of ontspannen na een drukke dag. Met maar liefst vijf slaapkamers, waarvan twee op de tweede verdieping, is er volop ruimte voor een groeiend gezin, een thuiskantoor of hobbyruimte. Dankzij de moderne afwerking en de praktische indeling voelt dit huis direct prettig en warm aan. Ook glasvezelinternet is aanwezig, ideaal voor thuiswerken of streamen. Deze woning biedt alles voor een comfortabel dagelijks leven.
De tuin is compact maar praktisch ingericht en biedt dankzij de ligging op het oosten een fijne plek om ’s ochtends van de zon te genieten. Onder de overkapping zit je het hele jaar door comfortabel buiten, ook bij minder weer. De berging zorgt voor extra opbergruimte voor fietsen en tuingereedschap, waardoor de tuin onderhoudsvriendelijk en overzichtelijk blijft.
Je woont hier in een rustige, kindvriendelijke wijk waar de basisschool om de hoek ligt. Op de fiets ben je binnen enkele minuten in het gezellige centrum van Drunen met een gevarieerd aanbod aan winkels en horeca. Ook de uitvalswegen liggen dichtbij, waardoor je eenvoudig en snel richting omliggende steden rijdt.
Belangrijk om te weten:
- Tussenwoning in Drunen;
- Fijne leefruimte met open keuken;
- Beschikt over vijf slaapkamers verdeeld over twee verdiepingen;
- Moderne badkamer met inloopdouche;
- Compacte, onderhoudsvriendelijke tuin op het oosten;
- Voorzien van overkapping en praktische berging;
- Glasvezelinternet aanwezig;
- Gelegen in een rustige, kindvriendelijke wijk;
- Basisschool en centrum van Drunen op korte afstand;
- Uitvalswegen snel en eenvoudig bereikbaar;
- Aanvaarding in overleg.
Deze informatie is door ons met de nodige zorgvuldigheid samengesteld. Onzerzijds wordt echter geen enkele aansprakelijkheid aanvaard voor enige onvolledigheid, onjuistheid of anderszins, dan wel de gevolgen daarvan. Alle opgegeven maten en oppervlakten zijn indicatief.
De tuin is compact maar praktisch ingericht en biedt dankzij de ligging op het oosten een fijne plek om ’s ochtends van de zon te genieten. Onder de overkapping zit je het hele jaar door comfortabel buiten, ook bij minder weer. De berging zorgt voor extra opbergruimte voor fietsen en tuingereedschap, waardoor de tuin onderhoudsvriendelijk en overzichtelijk blijft.
Je woont hier in een rustige, kindvriendelijke wijk waar de basisschool om de hoek ligt. Op de fiets ben je binnen enkele minuten in het gezellige centrum van Drunen met een gevarieerd aanbod aan winkels en horeca. Ook de uitvalswegen liggen dichtbij, waardoor je eenvoudig en snel richting omliggende steden rijdt.
Belangrijk om te weten:
- Tussenwoning in Drunen;
- Fijne leefruimte met open keuken;
- Beschikt over vijf slaapkamers verdeeld over twee verdiepingen;
- Moderne badkamer met inloopdouche;
- Compacte, onderhoudsvriendelijke tuin op het oosten;
- Voorzien van overkapping en praktische berging;
- Glasvezelinternet aanwezig;
- Gelegen in een rustige, kindvriendelijke wijk;
- Basisschool en centrum van Drunen op korte afstand;
- Uitvalswegen snel en eenvoudig bereikbaar;
- Aanvaarding in overleg.
Deze informatie is door ons met de nodige zorgvuldigheid samengesteld. Onzerzijds wordt echter geen enkele aansprakelijkheid aanvaard voor enige onvolledigheid, onjuistheid of anderszins, dan wel de gevolgen daarvan. Alle opgegeven maten en oppervlakten zijn indicatief.
Overdracht
- Status
- Verkocht onder voorbehoud
- Vraagprijs
- €435.000,00 Kosten koper
Bouwvorm
- Soort woning
- Eengezinswoning
- Type woning
- Tussenwoning
- Bouwjaar
- 1984
- Bouwvorm
- Bestaande bouw
- Ligging
- Aan rustige weg, In woonwijk
Indeling
- Woonoppervlakte
- 111 m2
- Perceeloppervlakte
- 134 m2
- Inhoud
- 385 m3
- Aantal kamers
- 6
- Aantal slaapkamers
- 5
- Aantal woonlagen
- 3
Energie
- Energielabel
- C
Overig
- Tuin
- Achtertuin, Voortuin
- Schuur / berging
- Vrijstaand steen
- Garage
- Geen garage
- Parkeerfaciliteiten
- Openbaar parkeren
- Soort dak
- Zadeldak
- Permanente bewoning
- Ja
- Huidig gebruik
- Woonruimte
- Huidige bestemming
- Woonruimte
In het kort
- Type woning
- Tussenwoning
- Bouwjaar
- 1984
- Woonoppervlakte
- 111 m2
- Aantal kamers
- 6
Vragen over dit huis?
Petra
Als Persoonlijk adviseur wonen help ik je graag verder. Bel of mail me gerust.
In de buurt
Selecteer een filter
Mogelijk interessant
Meer informatie
Drunen
Een keer bezichtigen?
Een goede voorbereiding...
Het is verstandig om antwoord te hebben op de volgende vragen als je een bezichtiging overweegt:
- Is je financieel advies up-to-date?
- Staat je eigen huis al in verkoop?
- Komt je aankoopmakelaar mee?
Heb je nog niet overal antwoord op? Geen zorgen, ik help je graag zodat jouw zoektocht zal slagen. Bel, Whatsapp of mail mij gerust, natuurlijk ook voor het plannen van een bezichtiging!
Heb je een vraag?
Bekijk de veelgestelde vragen
Download brochure




























