Polstraat 16
Beschikbaar
4261 BT Wijk en aalburg
€399.000,00 Kosten koper
Ben je op zoek naar een vrijstaande woning met karakter en volop mogelijkheden? Dan is dit compacte huis een mooie kans voor wie slim en praktisch wil wonen. De woning is klaar om opgeknapt te worden en biedt daarmee de ideale basis om alles naar eigen smaak in te richten. Dankzij de fijne indeling voelt het huis prettig en overzichtelijk aan. Een groot pluspunt is de royale buitenruimte met tal aan mogelijkheden, met onder andere een grote garage en extra bergingen. Een woning die klein wonen combineert met verrassend veel gebruiksmogelijkheden.
Het huis heeft een functionele indeling waarbij elke vierkante meter goed wordt benut. Op de begane grond bevinden zich de woonkamer, keuken en de badkamer, wat zorgt voor extra comfort. Op de verdieping zijn twee slaapkamers aanwezig, geschikt als slaap-, werk- of logeerkamer.
Deze woning ligt op een toplocatie! Dagelijkse voorzieningen zoals winkels, scholen en sportverenigingen zijn binnen korte afstand bereikbaar. Ook uitvalswegen richting omliggende dorpen en steden zijn goed toegankelijk, wat de locatie praktisch maakt voor dagelijks gebruik.
Belangrijk om te weten:
- Vrijstaande woning in Wijk en Aalburg;
- Compact woonoppervlak met een functionele en prettige indeling;
- Woning biedt volop mogelijkheden;
- Badkamer op de begane grond;
- Twee slaapkamers op de verdieping;
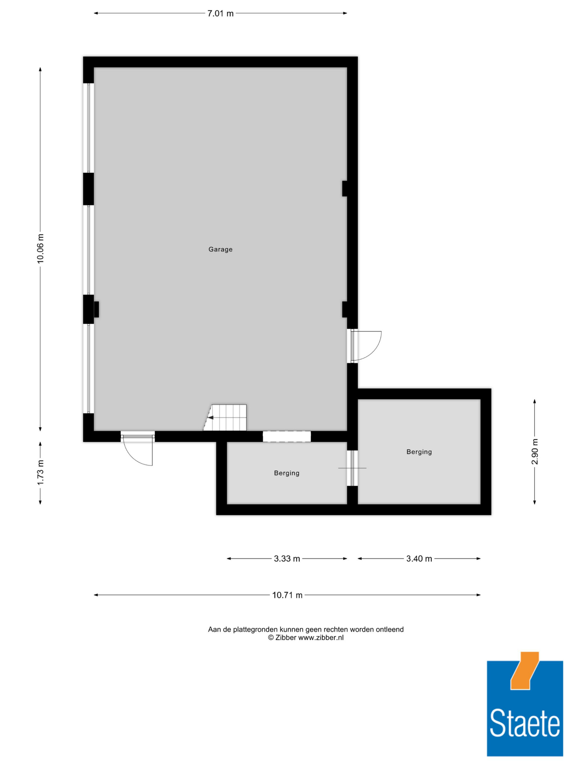
- Twee bergingen;
- Grote garage met ruimte voor vier auto’s;
- Rustige, dorpse woonomgeving met voorzieningen op korte afstand;
- Aanvaarding in overleg.
Deze informatie is door ons met de nodige zorgvuldigheid samengesteld. Onzerzijds wordt echter geen enkele aansprakelijkheid aanvaard voor enige onvolledigheid, onjuistheid of anderszins, dan wel de gevolgen daarvan. Alle opgegeven maten en oppervlakten zijn indicatief.
Het huis heeft een functionele indeling waarbij elke vierkante meter goed wordt benut. Op de begane grond bevinden zich de woonkamer, keuken en de badkamer, wat zorgt voor extra comfort. Op de verdieping zijn twee slaapkamers aanwezig, geschikt als slaap-, werk- of logeerkamer.
Deze woning ligt op een toplocatie! Dagelijkse voorzieningen zoals winkels, scholen en sportverenigingen zijn binnen korte afstand bereikbaar. Ook uitvalswegen richting omliggende dorpen en steden zijn goed toegankelijk, wat de locatie praktisch maakt voor dagelijks gebruik.
Belangrijk om te weten:
- Vrijstaande woning in Wijk en Aalburg;
- Compact woonoppervlak met een functionele en prettige indeling;
- Woning biedt volop mogelijkheden;
- Badkamer op de begane grond;
- Twee slaapkamers op de verdieping;
- Twee bergingen;
- Grote garage met ruimte voor vier auto’s;
- Rustige, dorpse woonomgeving met voorzieningen op korte afstand;
- Aanvaarding in overleg.
Deze informatie is door ons met de nodige zorgvuldigheid samengesteld. Onzerzijds wordt echter geen enkele aansprakelijkheid aanvaard voor enige onvolledigheid, onjuistheid of anderszins, dan wel de gevolgen daarvan. Alle opgegeven maten en oppervlakten zijn indicatief.
Overdracht
- Status
- Beschikbaar
- Vraagprijs
- €399.000,00 Kosten koper
Bouwvorm
- Soort woning
- Eengezinswoning
- Type woning
- Vrijstaande woning
- Bouwjaar
- 1960
- Bouwvorm
- Bestaande bouw
- Ligging
- In woonwijk
Indeling
- Woonoppervlakte
- 74 m2
- Perceeloppervlakte
- 522 m2
- Inhoud
- 291 m3
- Aantal kamers
- 3
- Aantal slaapkamers
- 2
- Aantal woonlagen
- 3
Energie
- Energielabel
- F
Overig
- Tuin
- Achtertuin, Zijtuin
- Schuur / berging
- Aangebouwd hout
- Garage
- Vrijstaand steen
- Parkeerfaciliteiten
- Openbaar parkeren, Op eigen terrein
- Soort dak
- Zadeldak
- Permanente bewoning
- Ja
- Huidig gebruik
- Woonruimte
- Huidige bestemming
- Woonruimte
In het kort
- Type woning
- Vrijstaande woning
- Bouwjaar
- 1960
- Woonoppervlakte
- 74 m2
- Aantal kamers
- 3
Vragen over dit huis?
Petra
Als Persoonlijk adviseur wonen help ik je graag verder. Bel of mail me gerust.
In de buurt
Selecteer een filter
Mogelijk interessant
Meer informatie
Kaatsheuvel
Vragen of een keer bezichtigen?
Een goede voorbereiding...
Het is verstandig om antwoord te hebben op de volgende vragen als je een bezichtiging overweegt:
- Is je financieel advies up-to-date?
- Staat je eigen huis al in verkoop?
- Komt je aankoopmakelaar mee?
Heb je nog niet overal antwoord op? Geen zorgen, ik help je graag zodat jouw zoektocht zal slagen. Bel, Whatsapp of mail mij gerust, natuurlijk ook voor het plannen van een bezichtiging!
Heb je een vraag?
Bekijk de veelgestelde vragen
Download brochure
























