Graafschapstraat 3
Verkocht
5144 ED Waalwijk
€650.000,00 Kosten koper
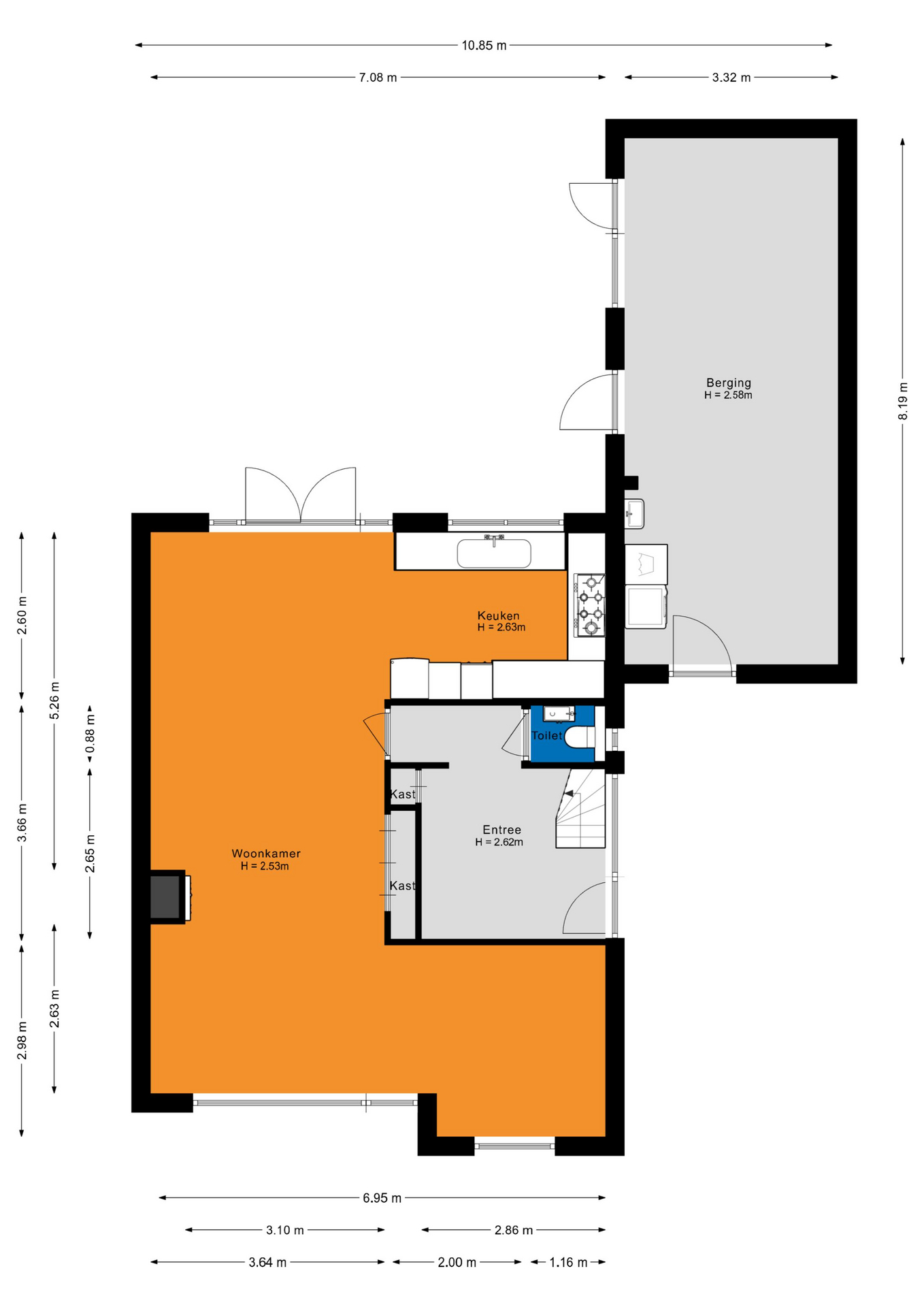
Stel je voor: een sfeervolle twee-onder-een-kapwoning in een gewilde buurt in Waalwijk. Een huis waar ruimte, comfort en gezelligheid moeiteloos samenkomen. Zodra je de oprit oprijdt en de voordeur opent, valt meteen de warme uitstraling van dit huis op. De visgraatvloer op de begane grond geeft karakter, terwijl de open haard uitnodigt tot knusse avonden met familie en vrienden. Via de dubbele deuren aan de achterzijde wandel je zo de achtertuin in: een fijne plek op het oosten, waar je geniet van het ochtendzonnetje en lange zomeravonden. Het huis verrast je bovendien met maar liefst vijf ruime slaapkamers, waardoor iedereen zijn eigen plekje kan creëren.
De badkamer maakt het plaatje boven compleet. Deze is in 2023 geplaatst en voorzien van een inloopdouche én dubbele wastafel. Ook praktisch gezien zit het hier wel goed. De garage beschikt over elektra, water en aansluitingen voor de wasapparatuur. Ideaal voor een wasruimte, hobbyplek of het stallen van de fietsen bijvoorbeeld.
Je woont hier op een fijne plek: binnen enkele minuten fiets je naar het gezellige centrum van Waalwijk of wandel je zo de natuur in. Ook voor gezinnen is de locatie ideaal, met een supermarkt, scholen en sportclubs dichtbij. Met de A59 op enkele minuten rijden zit je bovendien zo in Tilburg of ’s-Hertogenbosch.
Belangrijk om te weten:
- Sfeervolle tweekapper met veel ruimte in een gewilde woonwijk in Waalwijk;
- De benedenverdieping is voorzien van een sfeervolle visgraatvloer en open haard;
- Dubbele deuren naar de tuin;
- Vijf ruime slaapkamers, mogelijk om een zesde te creëren;
- De grootste slaapkamer geeft toegang tot het balkon;
- Luxe badkamer (2023) met inloopdouche en dubbele wastafel;
- Fijne achtertuin op het oosten;
- Eigen oprit en garage;
- De garage is voorzien van elektra, water en aansluitingen voor de wasapparatuur;
- Veel mooie natuur in de buurt;
- Aanvaarding in overleg.
Deze informatie is door ons met de nodige zorgvuldigheid samengesteld. Onzerzijds wordt echter geen enkele aansprakelijkheid aanvaard voor enige onvolledigheid, onjuistheid of anderszins, dan wel de gevolgen daarvan. Alle opgegeven maten en oppervlakten zijn indicatief.
De badkamer maakt het plaatje boven compleet. Deze is in 2023 geplaatst en voorzien van een inloopdouche én dubbele wastafel. Ook praktisch gezien zit het hier wel goed. De garage beschikt over elektra, water en aansluitingen voor de wasapparatuur. Ideaal voor een wasruimte, hobbyplek of het stallen van de fietsen bijvoorbeeld.
Je woont hier op een fijne plek: binnen enkele minuten fiets je naar het gezellige centrum van Waalwijk of wandel je zo de natuur in. Ook voor gezinnen is de locatie ideaal, met een supermarkt, scholen en sportclubs dichtbij. Met de A59 op enkele minuten rijden zit je bovendien zo in Tilburg of ’s-Hertogenbosch.
Belangrijk om te weten:
- Sfeervolle tweekapper met veel ruimte in een gewilde woonwijk in Waalwijk;
- De benedenverdieping is voorzien van een sfeervolle visgraatvloer en open haard;
- Dubbele deuren naar de tuin;
- Vijf ruime slaapkamers, mogelijk om een zesde te creëren;
- De grootste slaapkamer geeft toegang tot het balkon;
- Luxe badkamer (2023) met inloopdouche en dubbele wastafel;
- Fijne achtertuin op het oosten;
- Eigen oprit en garage;
- De garage is voorzien van elektra, water en aansluitingen voor de wasapparatuur;
- Veel mooie natuur in de buurt;
- Aanvaarding in overleg.
Deze informatie is door ons met de nodige zorgvuldigheid samengesteld. Onzerzijds wordt echter geen enkele aansprakelijkheid aanvaard voor enige onvolledigheid, onjuistheid of anderszins, dan wel de gevolgen daarvan. Alle opgegeven maten en oppervlakten zijn indicatief.
Overdracht
- Status
- Verkocht
- Vraagprijs
- €650.000,00 Kosten koper
Bouwvorm
- Soort woning
- Eengezinswoning
- Type woning
- Twee onder een kapwoning
- Bouwjaar
- 1972
- Bouwvorm
- Bestaande bouw
- Ligging
- Aan park, Aan rustige weg, In woonwijk
Indeling
- Woonoppervlakte
- 166 m2
- Perceeloppervlakte
- 272 m2
- Inhoud
- 673 m3
- Aantal kamers
- 6
- Aantal slaapkamers
- 5
- Aantal woonlagen
- 3
Energie
- Energielabel
- B
Overig
- Tuin
- Achtertuin, Voortuin
- Schuur / berging
- Geen schuur / berging
- Garage
- Aangebouwd steen
- Parkeerfaciliteiten
- Openbaar parkeren, Op eigen terrein
- Soort dak
- Tentdak
- Permanente bewoning
- Ja
- Huidig gebruik
- Woonruimte
- Huidige bestemming
- Woonruimte
In het kort
- Type woning
- Twee onder een kapwoning
- Bouwjaar
- 1972
- Woonoppervlakte
- 166 m2
- Aantal kamers
- 6
Vragen over dit huis?
Petra
Als Persoonlijk adviseur wonen help ik je graag verder. Bel of mail me gerust.
In de buurt
Selecteer een filter
Mogelijk interessant
Meer informatie
Kaatsheuvel
Vragen of een keer bezichtigen?
Een goede voorbereiding...
Het is verstandig om antwoord te hebben op de volgende vragen als je een bezichtiging overweegt:
- Is je financieel advies up-to-date?
- Staat je eigen huis al in verkoop?
- Komt je aankoopmakelaar mee?
Heb je nog niet overal antwoord op? Geen zorgen, ik help je graag zodat jouw zoektocht zal slagen. Bel, Whatsapp of mail mij gerust, natuurlijk ook voor het plannen van een bezichtiging!
Heb je een vraag?
Bekijk de veelgestelde vragen
Download brochure









































