Leemvaert 1
Verkocht
5171 LM Kaatsheuvel
€469.000,00 Kosten koper
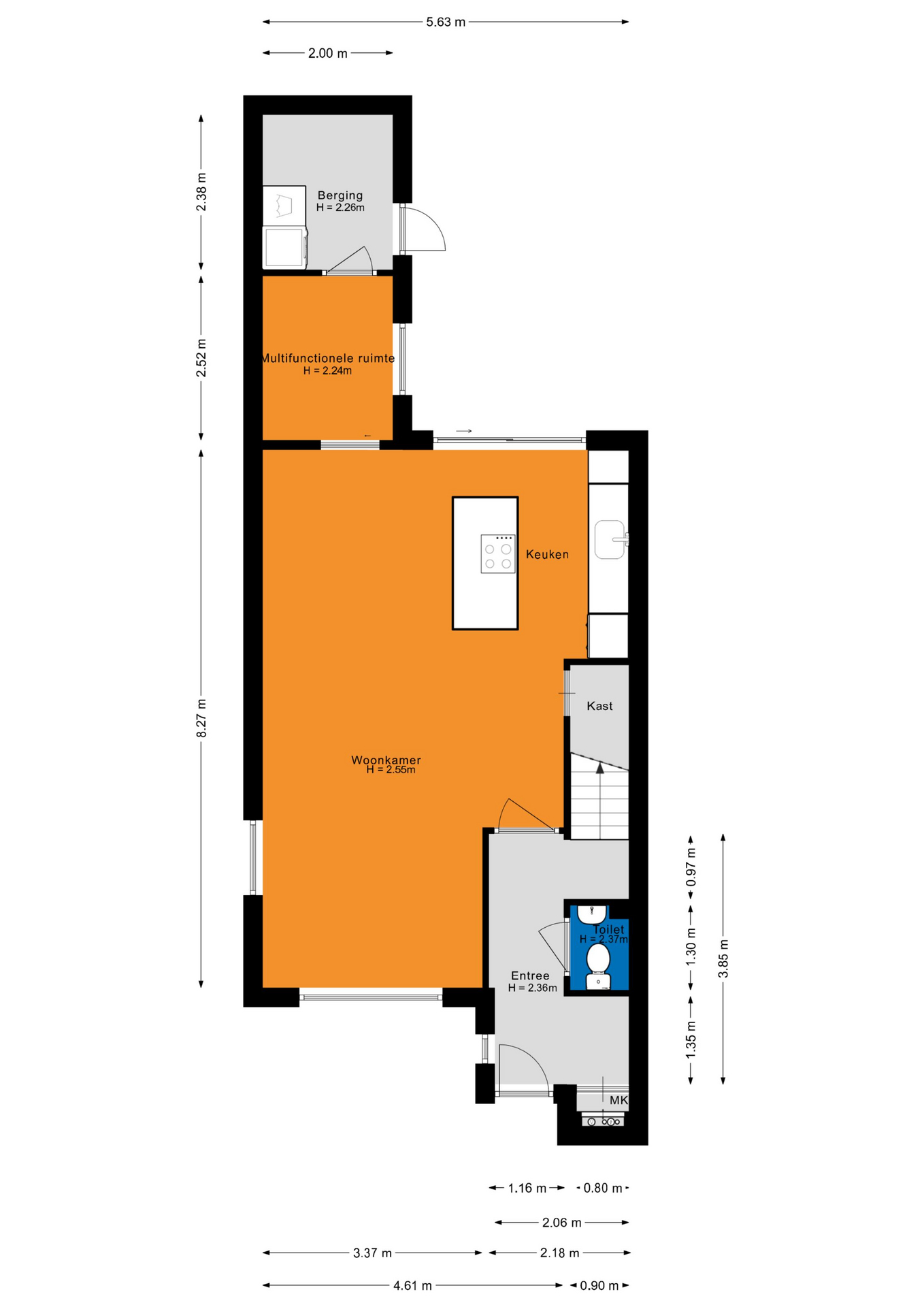
Hier komen comfort, ruimte en luxe perfect samen! Zodra je binnenstapt voel jij je thuis. Met vier slaapkamers en twee badkamers, is dit een huis dat met gemak meegroeit met jouw wensen. De gezellige woonkamer met prachtige vloer loopt naadloos over in de fraaie keuken. De keuken, met kookeiland, kokend waterkraan en moderne apparatuur, vormt het hart van het huis. Nodig vrienden en familie alvast uit voor een heerlijk etentje. De multifunctionele ruimte is ideaal als thuiskantoor of speelkamer voor de kinderen en biedt toegang tot de praktische berging.
Boven vind je een royale slaapkamer met badkamer en suite, plus nog twee fijne slaapkamers. Op zolder vind je de vierde slaapkamer én een tweede badkamer. De onderhoudsvriendelijk opgezette tuin is perfect om te ontspannen. Met verschillende fijne plekken om te zitten kun je optimaal van de buitenlucht genieten. Daarnaast ben je ook voorzien van handige berging.
Ook de ligging is perfect, met de dagelijkse voorzieningen dichtbij en de supermarkt zelfs op loopafstand. Er komt dit jaar nog een natuurspeelveldje in de buurt, ideaal voor de kinderen. Wil je er een dagje op uit? Dan kun je zelfs te voet naar de Efteling. Pak je de auto? Dan zijn Tilburg en Waalwijk snel bereikbaar. Kortom: Er is hier genoeg te beleven!
Belangrijk om te weten:
- Fraaie instapklare hoekwoning in Kaatsheuvel;
- Vier slaapkamers en twee badkamers;
- Gezellige woonkamer met prachtige pvc vloer;
- Begane grond en keuken in 2022 gemoderniseerd;
- Stijlvolle stalen deuren;
- Luxe keuken met kookeiland, kokend waterkraan en diverse moderne apparatuur;
- Multifunctionele ruimte tussen de keuken en de berging, waar je de aansluitingen van de wasapparatuur vindt;
- Onderhoudsvriendelijk opgezette tuin met praktische berging;
- Dit jaar wordt er een natuurspeelveldje gerealiseerd in de buurt;
- Supermarkt op loopafstand;
- Uitvalswegen dichtbij en Efteling op loopafstand;
- Aanvaarding in overleg.
Deze informatie is door ons met de nodige zorgvuldigheid samengesteld. Onzerzijds wordt echter geen enkele aansprakelijkheid aanvaard voor enige onvolledigheid, onjuistheid of anderszins, dan wel de gevolgen daarvan. Alle opgegeven maten en oppervlakten zijn indicatief.
Boven vind je een royale slaapkamer met badkamer en suite, plus nog twee fijne slaapkamers. Op zolder vind je de vierde slaapkamer én een tweede badkamer. De onderhoudsvriendelijk opgezette tuin is perfect om te ontspannen. Met verschillende fijne plekken om te zitten kun je optimaal van de buitenlucht genieten. Daarnaast ben je ook voorzien van handige berging.
Ook de ligging is perfect, met de dagelijkse voorzieningen dichtbij en de supermarkt zelfs op loopafstand. Er komt dit jaar nog een natuurspeelveldje in de buurt, ideaal voor de kinderen. Wil je er een dagje op uit? Dan kun je zelfs te voet naar de Efteling. Pak je de auto? Dan zijn Tilburg en Waalwijk snel bereikbaar. Kortom: Er is hier genoeg te beleven!
Belangrijk om te weten:
- Fraaie instapklare hoekwoning in Kaatsheuvel;
- Vier slaapkamers en twee badkamers;
- Gezellige woonkamer met prachtige pvc vloer;
- Begane grond en keuken in 2022 gemoderniseerd;
- Stijlvolle stalen deuren;
- Luxe keuken met kookeiland, kokend waterkraan en diverse moderne apparatuur;
- Multifunctionele ruimte tussen de keuken en de berging, waar je de aansluitingen van de wasapparatuur vindt;
- Onderhoudsvriendelijk opgezette tuin met praktische berging;
- Dit jaar wordt er een natuurspeelveldje gerealiseerd in de buurt;
- Supermarkt op loopafstand;
- Uitvalswegen dichtbij en Efteling op loopafstand;
- Aanvaarding in overleg.
Deze informatie is door ons met de nodige zorgvuldigheid samengesteld. Onzerzijds wordt echter geen enkele aansprakelijkheid aanvaard voor enige onvolledigheid, onjuistheid of anderszins, dan wel de gevolgen daarvan. Alle opgegeven maten en oppervlakten zijn indicatief.
Overdracht
- Status
- Verkocht
- Vraagprijs
- €469.000,00 Kosten koper
Bouwvorm
- Soort woning
- Eengezinswoning
- Type woning
- Hoekwoning
- Bouwjaar
- 1985
- Bouwvorm
- Bestaande bouw
- Ligging
- In centrum, In woonwijk
Indeling
- Woonoppervlakte
- 137 m2
- Perceeloppervlakte
- 195 m2
- Inhoud
- 481 m3
- Aantal kamers
- 6
- Aantal slaapkamers
- 4
- Aantal woonlagen
- 3
Energie
- Energielabel
- C
Overig
- Tuin
- Achtertuin, Voortuin
- Schuur / berging
- Vrijstaand hout
- Garage
- Geen garage
- Parkeerfaciliteiten
- Openbaar parkeren
- Soort dak
- Zadeldak
- Permanente bewoning
- Ja
- Huidig gebruik
- Woonruimte
- Huidige bestemming
- Woonruimte
In het kort
- Type woning
- Hoekwoning
- Bouwjaar
- 1985
- Woonoppervlakte
- 137 m2
- Aantal kamers
- 6
Vragen over dit huis?
Petra
Als Persoonlijk adviseur wonen help ik je graag verder. Bel of mail me gerust.
In de buurt
Selecteer een filter
Mogelijk interessant
Meer informatie
Kaatsheuvel
Vragen of een keer bezichtigen?
Een goede voorbereiding...
Het is verstandig om antwoord te hebben op de volgende vragen als je een bezichtiging overweegt:
- Is je financieel advies up-to-date?
- Staat je eigen huis al in verkoop?
- Komt je aankoopmakelaar mee?
Heb je nog niet overal antwoord op? Geen zorgen, ik help je graag zodat jouw zoektocht zal slagen. Bel, Whatsapp of mail mij gerust, natuurlijk ook voor het plannen van een bezichtiging!
Heb je een vraag?
Bekijk de veelgestelde vragen
Download brochure







































