Schubertstraat 28
Verkocht
5171 BS Kaatsheuvel
€359.000,00 Kosten koper
Dit gezellige huis biedt een fijne combinatie van licht, ruimte en privacy! In de woonkamer, waar je geniet van veel daglicht, creëer je een knusse sfeer in een handomdraai, dankzij de haard. De eethoek nodigt uit tot heerlijke diners met vrienden en familie. Hoewel de keuken wat gedateerd is momenteel, kun je hier de lekkerste maaltijden bereiden. Het biedt jou ook de kans om jouw stempel te drukken en het helemaal eigen te maken. Je beschikt hier over drie slaapkamers. Wil je liever een extra (slaap)kamer? Dan kun je eenvoudig een vaste trap realiseren en daarmee een vierde slaapkamer.
In de tuin is het heerlijk vertoeven en geniet je van veel privacy door het ontbreken van directe voor- en achterburen. Zoek een plekje in de zon of laat je groene vingers wapperen en zorg voor de bloeiende bloemen en planten. In de handige berging zet jij jouw fietsen, tuingereedschap en andere spullen veilig binnen.
Je woont in een rustige en groene omgeving, met alles binnen handbereik. Je staat in no time in het centrum, waar je diverse winkels en gezellige restaurants vindt. Zowel de basis- als middelbare school bevindt zich op loopafstand en voor een dagje weg hoef je niet ver: de Efteling en de Loonse en Drunense Duinen zijn snel en eenvoudig te bereiken.
Belangrijk om te weten:
- Fijne gezinswoning in Kaatsheuvel;
- Beschikt over drie slaapkamers met de mogelijkheid voor een vierde;
- Sfeervolle en lichte woonkamer;
- Eenvoudige, toch functionele keuken en badkamer;
- Fijne tuin met veel privacy;
- Gelegen aan een groen plein, nabij het centrum;
- Scholen, winkels en horeca dichtbij;
- Efteling en Loonse en Drunense Duinen nabij voor een dagje weg;
- Uitvalswegen snel te bereiken;
- Aanvaarding in overleg.
Deze informatie is door ons met de nodige zorgvuldigheid samengesteld. Onzerzijds wordt echter geen enkele aansprakelijkheid aanvaard voor enige onvolledigheid, onjuistheid of anderszins, dan wel de gevolgen daarvan. Alle opgegeven maten en oppervlakten zijn indicatief.
In de tuin is het heerlijk vertoeven en geniet je van veel privacy door het ontbreken van directe voor- en achterburen. Zoek een plekje in de zon of laat je groene vingers wapperen en zorg voor de bloeiende bloemen en planten. In de handige berging zet jij jouw fietsen, tuingereedschap en andere spullen veilig binnen.
Je woont in een rustige en groene omgeving, met alles binnen handbereik. Je staat in no time in het centrum, waar je diverse winkels en gezellige restaurants vindt. Zowel de basis- als middelbare school bevindt zich op loopafstand en voor een dagje weg hoef je niet ver: de Efteling en de Loonse en Drunense Duinen zijn snel en eenvoudig te bereiken.
Belangrijk om te weten:
- Fijne gezinswoning in Kaatsheuvel;
- Beschikt over drie slaapkamers met de mogelijkheid voor een vierde;
- Sfeervolle en lichte woonkamer;
- Eenvoudige, toch functionele keuken en badkamer;
- Fijne tuin met veel privacy;
- Gelegen aan een groen plein, nabij het centrum;
- Scholen, winkels en horeca dichtbij;
- Efteling en Loonse en Drunense Duinen nabij voor een dagje weg;
- Uitvalswegen snel te bereiken;
- Aanvaarding in overleg.
Deze informatie is door ons met de nodige zorgvuldigheid samengesteld. Onzerzijds wordt echter geen enkele aansprakelijkheid aanvaard voor enige onvolledigheid, onjuistheid of anderszins, dan wel de gevolgen daarvan. Alle opgegeven maten en oppervlakten zijn indicatief.
Overdracht
- Status
- Verkocht
- Vraagprijs
- €359.000,00 Kosten koper
Bouwvorm
- Soort woning
- Eengezinswoning
- Type woning
- Tussenwoning
- Bouwjaar
- Bouwvorm
- Bestaande bouw
- Ligging
- Aan rustige weg, In woonwijk, Open ligging
Indeling
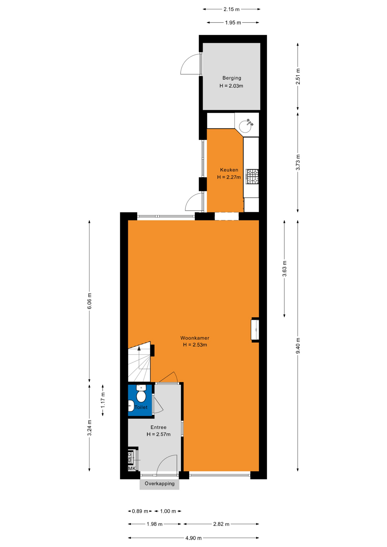
- Woonoppervlakte
- 95 m2
- Perceeloppervlakte
- 148 m2
- Inhoud
- 388 m3
- Aantal kamers
- 4
- Aantal slaapkamers
- 3
- Aantal woonlagen
- 3
Energie
- Energielabel
- B
Overig
- Tuin
- Achtertuin, Voortuin
- Schuur / berging
- Aangebouwd steen
- Garage
- Geen garage
- Parkeerfaciliteiten
- Openbaar parkeren
- Soort dak
- Zadeldak
- Permanente bewoning
- Ja
- Huidig gebruik
- Woonruimte
- Huidige bestemming
- Woonruimte
In het kort
- Type woning
- Tussenwoning
- Bouwjaar
- Woonoppervlakte
- 95 m2
- Aantal kamers
- 4
Vragen over dit huis?
Petra
Als Persoonlijk adviseur wonen help ik je graag verder. Bel of mail me gerust.
In de buurt
Selecteer een filter
Mogelijk interessant
Meer informatie
Kaatsheuvel
Vragen of een keer bezichtigen?
Een goede voorbereiding...
Het is verstandig om antwoord te hebben op de volgende vragen als je een bezichtiging overweegt:
- Is je financieel advies up-to-date?
- Staat je eigen huis al in verkoop?
- Komt je aankoopmakelaar mee?
Heb je nog niet overal antwoord op? Geen zorgen, ik help je graag zodat jouw zoektocht zal slagen. Bel, Whatsapp of mail mij gerust, natuurlijk ook voor het plannen van een bezichtiging!
Heb je een vraag?
Bekijk de veelgestelde vragen
Download brochure
































