Cowahof 0ong
Beschikbaar
5142 EP Waalwijk
€399.000,00 Vrij op naam
Cowahof l Waalwijk
INCLUSIEF KEUKEN EN BADKAMER!
Dit appartement is onderdeel van nieuwbouwproject Loeff. Loeff ligt aan de Loeffstraat ( vandaar de naam) aan de noordoostkant van Waalwijk, in Baardwijk.
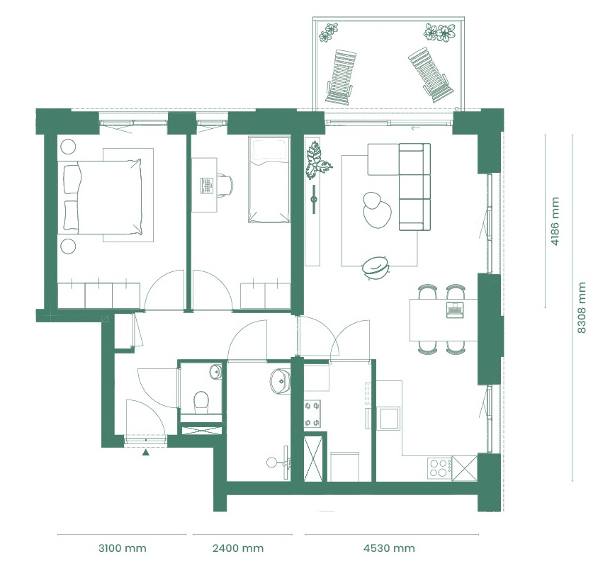
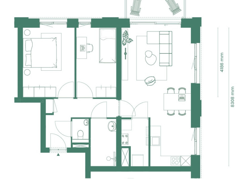
Het appartement is gelegen op de eerste of tweede verdieping en heeft een woonoppervlak van circa 74 m2. Met twee slaapkamers en voorzieningen binnen handbereik een heerlijk appartement.
De bouw van dit appartement start naar verwachting begin 2026.
• Woonoppervlakte circa 74 m2
• Balkon op het oosten, zuiden of westen
• Toegang tot balkon met schuifpui
• Parkeren in openbaar gebied
• Gasloos en met comfortabele vloerverwarming
• Energielabel A+++
• Separaat toilet
• Badkamer met douche en wastafel
• Complete keuken, voorzien van Etna apparatuur.
*Gemeten conform NEN 2580
INCLUSIEF KEUKEN EN BADKAMER!
Dit appartement is onderdeel van nieuwbouwproject Loeff. Loeff ligt aan de Loeffstraat ( vandaar de naam) aan de noordoostkant van Waalwijk, in Baardwijk.
Het appartement is gelegen op de eerste of tweede verdieping en heeft een woonoppervlak van circa 74 m2. Met twee slaapkamers en voorzieningen binnen handbereik een heerlijk appartement.
De bouw van dit appartement start naar verwachting begin 2026.
• Woonoppervlakte circa 74 m2
• Balkon op het oosten, zuiden of westen
• Toegang tot balkon met schuifpui
• Parkeren in openbaar gebied
• Gasloos en met comfortabele vloerverwarming
• Energielabel A+++
• Separaat toilet
• Badkamer met douche en wastafel
• Complete keuken, voorzien van Etna apparatuur.
*Gemeten conform NEN 2580
Overdracht
- Status
- Beschikbaar
- Koopsom
- €399.000,00 Vrij op naam
Bouwvorm
- Soort woning
- Portiekflat
- Type woning
- Appartement
- Bouwjaar
- 2026
- Bouwvorm
- Nieuwbouw
- Ligging
- In woonwijk
Indeling
- Woonoppervlakte
- 75 m2
- Perceeloppervlakte
- 0 m2
- Inhoud
- 195 m3
- Aantal kamers
- 3
- Aantal slaapkamers
- 2
- Aantal woonlagen
- 1
Energie
- Energielabel
- A_PPP
Overig
- Tuin
- Zonneterras
- Schuur / berging
- Inpandig
- Garage
- Geen garage
- Parkeerfaciliteiten
- Openbaar parkeren
- Soort dak
- Plat dak
- Permanente bewoning
- Ja
- Huidig gebruik
- Woonruimte
- Huidige bestemming
- Woonruimte
In het kort
- Type woning
- Appartement
- Bouwjaar
- 2026
- Woonoppervlakte
- 75 m2
- Aantal kamers
- 3
Vragen over dit huis?
Petra
Als Persoonlijk adviseur wonen help ik je graag verder. Bel of mail me gerust.
In de buurt
Selecteer een filter
Mogelijk interessant
Meer informatie
Kaatsheuvel
Vragen of een keer bezichtigen?
Een goede voorbereiding...
Het is verstandig om antwoord te hebben op de volgende vragen als je een bezichtiging overweegt:
- Is je financieel advies up-to-date?
- Staat je eigen huis al in verkoop?
- Komt je aankoopmakelaar mee?
Heb je nog niet overal antwoord op? Geen zorgen, ik help je graag zodat jouw zoektocht zal slagen. Bel, Whatsapp of mail mij gerust, natuurlijk ook voor het plannen van een bezichtiging!
Heb je een vraag?
Bekijk de veelgestelde vragen

