Bergstraat 27
Beschikbaar
5175 AC Loon op zand
€369.000,00 Kosten koper
Ben je op zoek naar een twee-onder-een-kapwoning die je helemaal kunt vormgeven naar jouw eigen smaak? Dan is deze woning in Loon op Zand een mooie kans. Je beschikt hier over een degelijke basis met onder andere twee slaapkamers en een praktische bergzolder. De huidige indeling biedt volop perspectief: ga je voor een open keuken als hart van het huis of richt je de woonkamer zo in dat je optimaal geniet van het uitzicht op de tuin? Hier geef jij zelf invulling aan comfort en uitstraling. De begane grond biedt een prettige leefruimte met voldoende mogelijkheden om deze te moderniseren en aan te passen aan de woonwensen van nu.
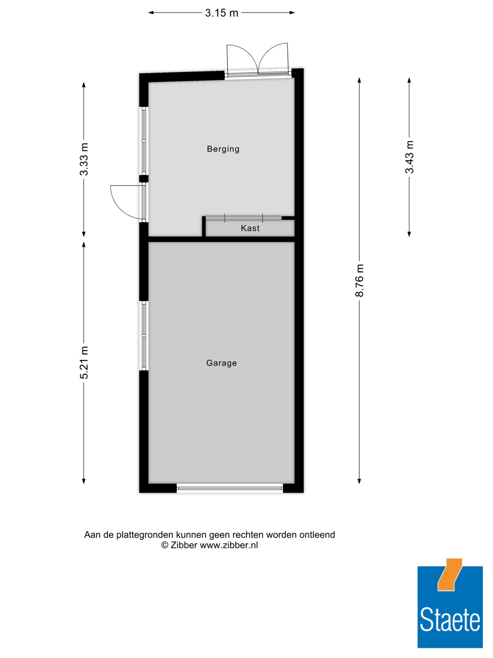
Buiten wacht een ruime achtertuin die je geheel naar eigen inzicht kunt aanleggen. Of je nu droomt van een terras met overkapping, een speelplek of een groene oase met meerdere loungeplekken: de ruimte is er. De garage en de separate berging zorgen voor praktische opslag.
Daarnaast woon je hier op korte afstand van het centrum en sportvoorzieningen. Via de N261 ben je bovendien snel onderweg richting Tilburg en Waalwijk, wat zorgt voor een prettige combinatie van rust en bereikbaarheid. En je staat in no time in de natuur, perfect voor wandelingen of fietstochten.
Belangrijk om te weten:
- Twee-onder-een-kapwoning in Loon op Zand met veel mogelijkheden;
- Naar eigen wens te maken;
- Twee slaapkamers;
- Praktische indeling;
- Ruime achtertuin met achterom en garage;
- Gelegen nabij het centrum;
- Natuur en (sport)voorzieningen dichtbij;
- Uitvalswegen snel bereikbaar;
- Deze woning zal via projectnotaris Dierckxsens, Van Grinsven, Franken Notarissen passeren;
- Op deze woning is een zelfbewoningsplicht van toepassing;
- Aanvaarding in overleg.
Deze informatie is door ons met de nodige zorgvuldigheid samengesteld. Onzerzijds wordt echter geen enkele aansprakelijkheid aanvaard voor enige onvolledigheid, onjuistheid of anderszins, dan wel de gevolgen daarvan. Alle opgegeven maten en oppervlakten zijn indicatief.
Buiten wacht een ruime achtertuin die je geheel naar eigen inzicht kunt aanleggen. Of je nu droomt van een terras met overkapping, een speelplek of een groene oase met meerdere loungeplekken: de ruimte is er. De garage en de separate berging zorgen voor praktische opslag.
Daarnaast woon je hier op korte afstand van het centrum en sportvoorzieningen. Via de N261 ben je bovendien snel onderweg richting Tilburg en Waalwijk, wat zorgt voor een prettige combinatie van rust en bereikbaarheid. En je staat in no time in de natuur, perfect voor wandelingen of fietstochten.
Belangrijk om te weten:
- Twee-onder-een-kapwoning in Loon op Zand met veel mogelijkheden;
- Naar eigen wens te maken;
- Twee slaapkamers;
- Praktische indeling;
- Ruime achtertuin met achterom en garage;
- Gelegen nabij het centrum;
- Natuur en (sport)voorzieningen dichtbij;
- Uitvalswegen snel bereikbaar;
- Deze woning zal via projectnotaris Dierckxsens, Van Grinsven, Franken Notarissen passeren;
- Op deze woning is een zelfbewoningsplicht van toepassing;
- Aanvaarding in overleg.
Deze informatie is door ons met de nodige zorgvuldigheid samengesteld. Onzerzijds wordt echter geen enkele aansprakelijkheid aanvaard voor enige onvolledigheid, onjuistheid of anderszins, dan wel de gevolgen daarvan. Alle opgegeven maten en oppervlakten zijn indicatief.
Overdracht
- Status
- Beschikbaar
- Vraagprijs
- €369.000,00 Kosten koper
Bouwvorm
- Soort woning
- Eengezinswoning
- Type woning
- Twee onder een kapwoning
- Bouwjaar
- 1948
- Bouwvorm
- Bestaande bouw
- Ligging
- Aan rustige weg, In woonwijk
Indeling
- Woonoppervlakte
- 82 m2
- Perceeloppervlakte
- 268 m2
- Inhoud
- 311 m3
- Aantal kamers
- 3
- Aantal slaapkamers
- 2
- Aantal woonlagen
- 3
Energie
- Energielabel
- C
Overig
- Tuin
- Achtertuin
- Schuur / berging
- Aangebouwd steen
- Garage
- Garagebox
- Parkeerfaciliteiten
- Openbaar parkeren, Op eigen terrein
- Soort dak
- Zadeldak
- Permanente bewoning
- Ja
- Huidig gebruik
- Woonruimte
- Huidige bestemming
- Woonruimte
In het kort
- Type woning
- Twee onder een kapwoning
- Bouwjaar
- 1948
- Woonoppervlakte
- 82 m2
- Aantal kamers
- 3
Vragen over dit huis?
Petra
Als Persoonlijk adviseur wonen help ik je graag verder. Bel of mail me gerust.
In de buurt
Selecteer een filter
Mogelijk interessant
Meer informatie
Kaatsheuvel
Vragen of een keer bezichtigen?
Een goede voorbereiding...
Het is verstandig om antwoord te hebben op de volgende vragen als je een bezichtiging overweegt:
- Is je financieel advies up-to-date?
- Staat je eigen huis al in verkoop?
- Komt je aankoopmakelaar mee?
Heb je nog niet overal antwoord op? Geen zorgen, ik help je graag zodat jouw zoektocht zal slagen. Bel, Whatsapp of mail mij gerust, natuurlijk ook voor het plannen van een bezichtiging!
Heb je een vraag?
Bekijk de veelgestelde vragen
Download brochure























