Orteliuslaan 3
Beschikbaar
5141 AX Waalwijk
€365.000,00 Kosten koper
Zoek je een instapklare tussenwoning vol sfeer? Dan is het huis gelegen aan de Orteliuslaan 3 precies wat jij zoekt! Deze in 2018 verbouwde tussenwoning beschikt over vier fijne slaapkamers, energielabel A+ en maar liefst 15 zonnepanelen. Zodra je binnenkomt voel jij je direct thuis in de gezellige woonkamer, die naadloos overloopt in de open keuken. Hier vind je diverse moderne apparatuur om de lekkerste maaltijden te bereiden. De luxe badkamer uit 2024 is niet alleen een lust voor het oog; deze is ook nog erg praktisch ingericht met een dubbele wastafel, extra toilet en een inloopdouche. De airco in de woonkamer en op de slaapkamer zorgen ook nog eens voor een aangename temperatuur, het hele jaar door.
In de tuin, gelegen op het oosten, geniet je van een heerlijk plekje in de ochtendzon. Even geen zin in de zon? Dan biedt de zonneluifel uitkomst. En ’s avonds kom je helemaal tot rust in de jacuzzi onder de overkapping. Je fietsen en gereedschap zet je veilig binnen in de berging. Handig, toch?
De ligging is top: nabij het centrum van Waalwijk met winkels, horeca en voorzieningen. De A59 is snel bereikbaar, waardoor je vlot richting Tilburg, ‘s-Hertogenbosch of Breda rijdt. In je vrije tijd fiets je in circa 20 minuten naar de Efteling of de uitgestrekte Loonse en Drunense Duinen, perfect voor een wandeling, picknick of sportieve tocht.
Belangrijk om te weten:
- Instapklare en sfeervolle tussenwoning in Waalwijk;
- Voorzien van energielabel A+, 15 zonnepanelen en airconditioning in de woonkamer en slaapkamer;
- Vier fijne slaapkamers;
- Gezellige woonkamer en open keuken met diverse apparatuur;
- Nette tuin met zonneluifel, overkapping en jacuzzi (ter overname);
- Voorzien van rolluiken;
- Luxe badkamer uit 2024;
- Nabij het centrum, de A59 en de Efteling;
- Aanvaarding in overleg.
Deze informatie is door ons met de nodige zorgvuldigheid samengesteld. Onzerzijds wordt echter geen enkele aansprakelijkheid aanvaard voor enige onvolledigheid, onjuistheid of anderszins, dan wel de gevolgen daarvan. Alle opgegeven maten en oppervlakten zijn indicatief.
In de tuin, gelegen op het oosten, geniet je van een heerlijk plekje in de ochtendzon. Even geen zin in de zon? Dan biedt de zonneluifel uitkomst. En ’s avonds kom je helemaal tot rust in de jacuzzi onder de overkapping. Je fietsen en gereedschap zet je veilig binnen in de berging. Handig, toch?
De ligging is top: nabij het centrum van Waalwijk met winkels, horeca en voorzieningen. De A59 is snel bereikbaar, waardoor je vlot richting Tilburg, ‘s-Hertogenbosch of Breda rijdt. In je vrije tijd fiets je in circa 20 minuten naar de Efteling of de uitgestrekte Loonse en Drunense Duinen, perfect voor een wandeling, picknick of sportieve tocht.
Belangrijk om te weten:
- Instapklare en sfeervolle tussenwoning in Waalwijk;
- Voorzien van energielabel A+, 15 zonnepanelen en airconditioning in de woonkamer en slaapkamer;
- Vier fijne slaapkamers;
- Gezellige woonkamer en open keuken met diverse apparatuur;
- Nette tuin met zonneluifel, overkapping en jacuzzi (ter overname);
- Voorzien van rolluiken;
- Luxe badkamer uit 2024;
- Nabij het centrum, de A59 en de Efteling;
- Aanvaarding in overleg.
Deze informatie is door ons met de nodige zorgvuldigheid samengesteld. Onzerzijds wordt echter geen enkele aansprakelijkheid aanvaard voor enige onvolledigheid, onjuistheid of anderszins, dan wel de gevolgen daarvan. Alle opgegeven maten en oppervlakten zijn indicatief.
Overdracht
- Status
- Beschikbaar
- Vraagprijs
- €365.000,00 Kosten koper
Bouwvorm
- Soort woning
- Eengezinswoning
- Type woning
- Tussenwoning
- Bouwjaar
- 1960
- Bouwvorm
- Bestaande bouw
- Ligging
- Aan rustige weg, In woonwijk
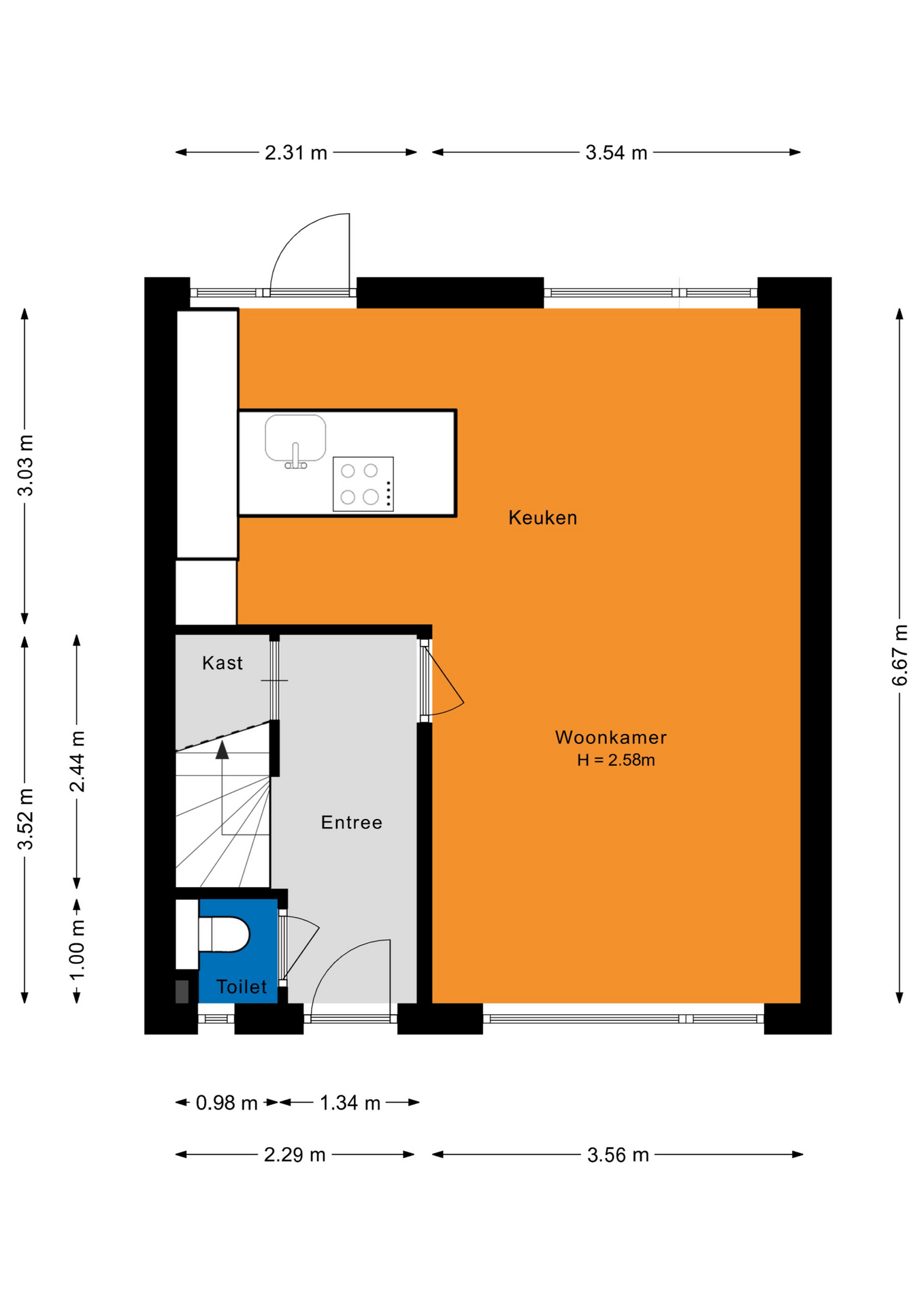
Indeling
- Woonoppervlakte
- 80 m2
- Perceeloppervlakte
- 116 m2
- Inhoud
- 340 m3
- Aantal kamers
- 5
- Aantal slaapkamers
- 4
- Aantal woonlagen
- 3
Energie
- Energielabel
- A_P
Overig
- Tuin
- Achtertuin
- Schuur / berging
- Vrijstaand steen
- Garage
- Geen garage
- Parkeerfaciliteiten
- Openbaar parkeren
- Soort dak
- Zadeldak
- Permanente bewoning
- Ja
- Huidig gebruik
- Woonruimte
- Huidige bestemming
- Woonruimte
In het kort
- Type woning
- Tussenwoning
- Bouwjaar
- 1960
- Woonoppervlakte
- 80 m2
- Aantal kamers
- 5
Vragen over dit huis?

Petra
Als Persoonlijk adviseur wonen help ik je graag verder. Bel of mail me gerust.
In de buurt
Selecteer een filter
Mogelijk interessant
Meer informatie
Kaatsheuvel

Vragen of een keer bezichtigen?
Een goede voorbereiding...
Het is verstandig om antwoord te hebben op de volgende vragen als je een bezichtiging overweegt:
- Is je financieel advies up-to-date?
- Staat je eigen huis al in verkoop?
- Komt je aankoopmakelaar mee?
Heb je nog niet overal antwoord op? Geen zorgen, ik help je graag zodat jouw zoektocht zal slagen. Bel, Whatsapp of mail mij gerust, natuurlijk ook voor het plannen van een bezichtiging!
Heb je een vraag?
Bekijk de veelgestelde vragen
Download brochure