Kasteellaan 20A
Beschikbaar
5175 BD Loon op zand
€2.450.000,00 Kosten koper
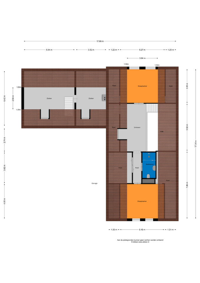
Ontdek de perfecte balans tussen historische charme en moderne luxe op deze unieke locatie aan de Kasteellaan in Loon op Zand. Dit adembenemende landhuis is niet zomaar een woning; het is een levensstijl, een verhaal dat wacht om verteld te worden. Met een royaal woonoppervlak van 233 m² met onder andere drie uitnodigende slaapkamers en twee badkamers, biedt dit huis een warm welkom. Eén van de slaapkamers is op de begane grond en geeft toegang tot een luxe badkamer en suite. Dit maakt deze plek ook nog eens geschikt voor levensloopbestendig wonen.
De keuken is in 2022 geplaatst en van alle moderne gemakken voorzien. Natuurlijk is de keuken in open verbinding met de eetkamer, zodat u tijdens het diner contact houdt met uw gasten. De ideale setting voor culinaire avonden met vrienden en/of familie. Een goede fles wijn uit de wijnkelder kan op zo’n avond uiteraard niet ontbreken. Hier geniet u van volop luxe en verfijning.
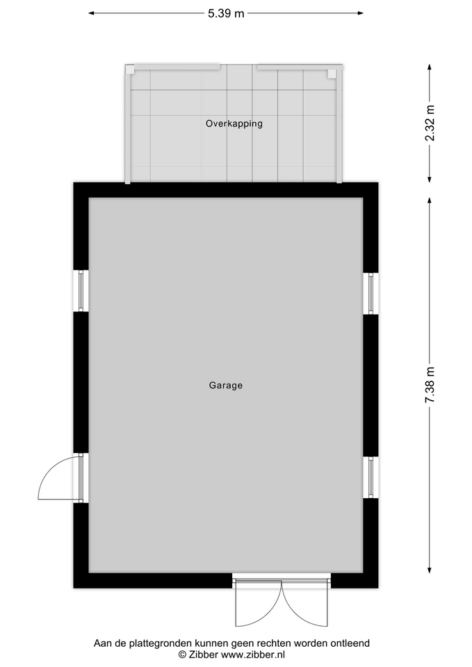
Stap naar buiten en ontdek de weidse schoonheid van de omgeving. Omringd door bos en weilanden en op een perceel van maar liefst 40.930 m², biedt deze residentie een exclusieve levensstijl waar privacy en natuurlijke pracht hand in hand gaan en dat op loopafstand van het centrum van Loon op Zand. De inpandige garage met ruimte voor twee auto’s voegt gemak toe aan deze idyllische setting. Wandel over de paden door de tuin, het bos, over het bruggetje en richting de stallen.
Natuurliefhebbers kunnen niet alleen op eigen grond het hart ophalen, het nabijgelegen natuurgebied de Loonse en Drunense Duinen is een waar paradijs voor wandelingen en fietstochten. Tegelijkertijd biedt de gunstige ligging ten opzichte van steden als Tilburg, ’s-Hertogenbosch en Eindhoven moeiteloze toegang tot het bruisende stadsleven.
Dit landhuis is niet alleen een huis; het is een eerbetoon aan het verleden, gebouwd op de historische grond waar ooit Villa Rosa stond. Vlakbij staat een prachtig kasteel, wat oorspronkelijk een beduidend groter kasteel was dan het huidige Witte Kasteel en het onderhavige Zaadhuisje. Oorspronkelijk, kort na het jaar 1380, behoorde het tot het bezit van hertogin Johanna van Brabant. In de periode van de Hoekse en Kabeljauwse Twisten koos Pauwels van Haestrecht, de eigenaar op dat moment, de kant van de graaf van Holland. Hierdoor raakte hij in conflict met de edelen van Brabant. In 1400 trok het leger van Brabant ten strijde. Pauwels van Haestrecht kwam om maar zijn Borg hield stand, dankzij niets anders dan de slotgracht en de metersdikke muren. Later, tijdens de Tachtigjarige Oorlog, werd het kasteel nog twee keer belegerd maar ook toen kon het niet worden ingenomen. In 1672 gebruikte Zonnekoning Lodewijk XIV het kasteel nog enige tijd toen hij in oorlog was met de Republiek der Zeven Verenigde Nederlanden en nog weer later was Napoleon er te gast.
Belangrijk om te weten:
- Landhuis op een unieke plek in Loon op Zand;
- Fantastisch afgewerkt;
- De luxe keuken uit 2022 is van alle moderne gemakken voorzien;
- Vanuit de entree toegang tot de kelder met wijnkelder;
- Slaapkamer met luxe badkamer en suite op de begane grond;
- Twee slaapkamers en een badkamer op de eerste verdieping;
- Veel opbergruimte dankzij inbouwkasten;
- Beschikt over 28 zonnepanelen (in 2023 geplaatst);
- Inpandige garage met plek voor twee auto’s;
- Een majestueuze toegangspoort en een oprit van ruim 100 meter;
- Camerasysteem waardoor u altijd een veilig gevoel heeft;
- Prachtig gelegen op een parkachtig perceel van ruim vier hectare, omgeven door weilanden, veel privacy;
- Beschikt over stallen voor het houden van paarden of andere dieren;
- Het gehele perceel is omheind met een degelijk hekwerk;
- Rustige en groene omgeving;
- Aanvaarding in overleg.
Deze informatie is door ons met de nodige zorgvuldigheid samengesteld. Onzerzijds wordt echt geen enkele aansprakelijkheid aanvaard voor enige onvolledigheid, onjuistheid of anderszins, dan wel de gevolgen daarvan. Alle opgegeven maten en oppervlakten zijn indicatief.
De keuken is in 2022 geplaatst en van alle moderne gemakken voorzien. Natuurlijk is de keuken in open verbinding met de eetkamer, zodat u tijdens het diner contact houdt met uw gasten. De ideale setting voor culinaire avonden met vrienden en/of familie. Een goede fles wijn uit de wijnkelder kan op zo’n avond uiteraard niet ontbreken. Hier geniet u van volop luxe en verfijning.
Stap naar buiten en ontdek de weidse schoonheid van de omgeving. Omringd door bos en weilanden en op een perceel van maar liefst 40.930 m², biedt deze residentie een exclusieve levensstijl waar privacy en natuurlijke pracht hand in hand gaan en dat op loopafstand van het centrum van Loon op Zand. De inpandige garage met ruimte voor twee auto’s voegt gemak toe aan deze idyllische setting. Wandel over de paden door de tuin, het bos, over het bruggetje en richting de stallen.
Natuurliefhebbers kunnen niet alleen op eigen grond het hart ophalen, het nabijgelegen natuurgebied de Loonse en Drunense Duinen is een waar paradijs voor wandelingen en fietstochten. Tegelijkertijd biedt de gunstige ligging ten opzichte van steden als Tilburg, ’s-Hertogenbosch en Eindhoven moeiteloze toegang tot het bruisende stadsleven.
Dit landhuis is niet alleen een huis; het is een eerbetoon aan het verleden, gebouwd op de historische grond waar ooit Villa Rosa stond. Vlakbij staat een prachtig kasteel, wat oorspronkelijk een beduidend groter kasteel was dan het huidige Witte Kasteel en het onderhavige Zaadhuisje. Oorspronkelijk, kort na het jaar 1380, behoorde het tot het bezit van hertogin Johanna van Brabant. In de periode van de Hoekse en Kabeljauwse Twisten koos Pauwels van Haestrecht, de eigenaar op dat moment, de kant van de graaf van Holland. Hierdoor raakte hij in conflict met de edelen van Brabant. In 1400 trok het leger van Brabant ten strijde. Pauwels van Haestrecht kwam om maar zijn Borg hield stand, dankzij niets anders dan de slotgracht en de metersdikke muren. Later, tijdens de Tachtigjarige Oorlog, werd het kasteel nog twee keer belegerd maar ook toen kon het niet worden ingenomen. In 1672 gebruikte Zonnekoning Lodewijk XIV het kasteel nog enige tijd toen hij in oorlog was met de Republiek der Zeven Verenigde Nederlanden en nog weer later was Napoleon er te gast.
Belangrijk om te weten:
- Landhuis op een unieke plek in Loon op Zand;
- Fantastisch afgewerkt;
- De luxe keuken uit 2022 is van alle moderne gemakken voorzien;
- Vanuit de entree toegang tot de kelder met wijnkelder;
- Slaapkamer met luxe badkamer en suite op de begane grond;
- Twee slaapkamers en een badkamer op de eerste verdieping;
- Veel opbergruimte dankzij inbouwkasten;
- Beschikt over 28 zonnepanelen (in 2023 geplaatst);
- Inpandige garage met plek voor twee auto’s;
- Een majestueuze toegangspoort en een oprit van ruim 100 meter;
- Camerasysteem waardoor u altijd een veilig gevoel heeft;
- Prachtig gelegen op een parkachtig perceel van ruim vier hectare, omgeven door weilanden, veel privacy;
- Beschikt over stallen voor het houden van paarden of andere dieren;
- Het gehele perceel is omheind met een degelijk hekwerk;
- Rustige en groene omgeving;
- Aanvaarding in overleg.
Deze informatie is door ons met de nodige zorgvuldigheid samengesteld. Onzerzijds wordt echt geen enkele aansprakelijkheid aanvaard voor enige onvolledigheid, onjuistheid of anderszins, dan wel de gevolgen daarvan. Alle opgegeven maten en oppervlakten zijn indicatief.
Overdracht
- Status
- Beschikbaar
- Vraagprijs
- €2.450.000,00 Kosten koper
Bouwvorm
- Soort woning
- Landhuis
- Type woning
- Vrijstaande woning
- Bouwjaar
- 1985
- Bouwvorm
- Bestaande bouw
- Ligging
- Vrij uitzicht, Beschutte ligging, In bosrijke omgeving
Indeling
- Woonoppervlakte
- 233 m2
- Perceeloppervlakte
- 40930 m2
- Inhoud
- 1241 m3
- Aantal kamers
- 5
- Aantal slaapkamers
- 3
- Aantal woonlagen
- 2
Energie
- Energielabel
- C
Overig
- Tuin
- Tuin rondom
- Schuur / berging
- Vrijstaand steen
- Garage
- Inpandig
- Parkeerfaciliteiten
- Op afgesloten terrein
- Soort dak
- Zadeldak
- Permanente bewoning
- Ja
- Huidig gebruik
- Woonruimte
- Huidige bestemming
- Woonruimte
In het kort
- Type woning
- Vrijstaande woning
- Bouwjaar
- 1985
- Woonoppervlakte
- 233 m2
- Aantal kamers
- 5
Vragen over dit huis?
Petra
Als Persoonlijk adviseur wonen help ik je graag verder. Bel of mail me gerust.
In de buurt
Selecteer een filter
Meer informatie
Kaatsheuvel
Vragen of een keer bezichtigen?
Een goede voorbereiding...
Het is verstandig om antwoord te hebben op de volgende vragen als je een bezichtiging overweegt:
- Is je financieel advies up-to-date?
- Staat je eigen huis al in verkoop?
- Komt je aankoopmakelaar mee?
Heb je nog niet overal antwoord op? Geen zorgen, ik help je graag zodat jouw zoektocht zal slagen. Bel, Whatsapp of mail mij gerust, natuurlijk ook voor het plannen van een bezichtiging!
Heb je een vraag?
Bekijk de veelgestelde vragen
Download brochure





















































