Staalmijn 16
Verkocht
5144 HP Waalwijk
€689.000,00 Kosten koper
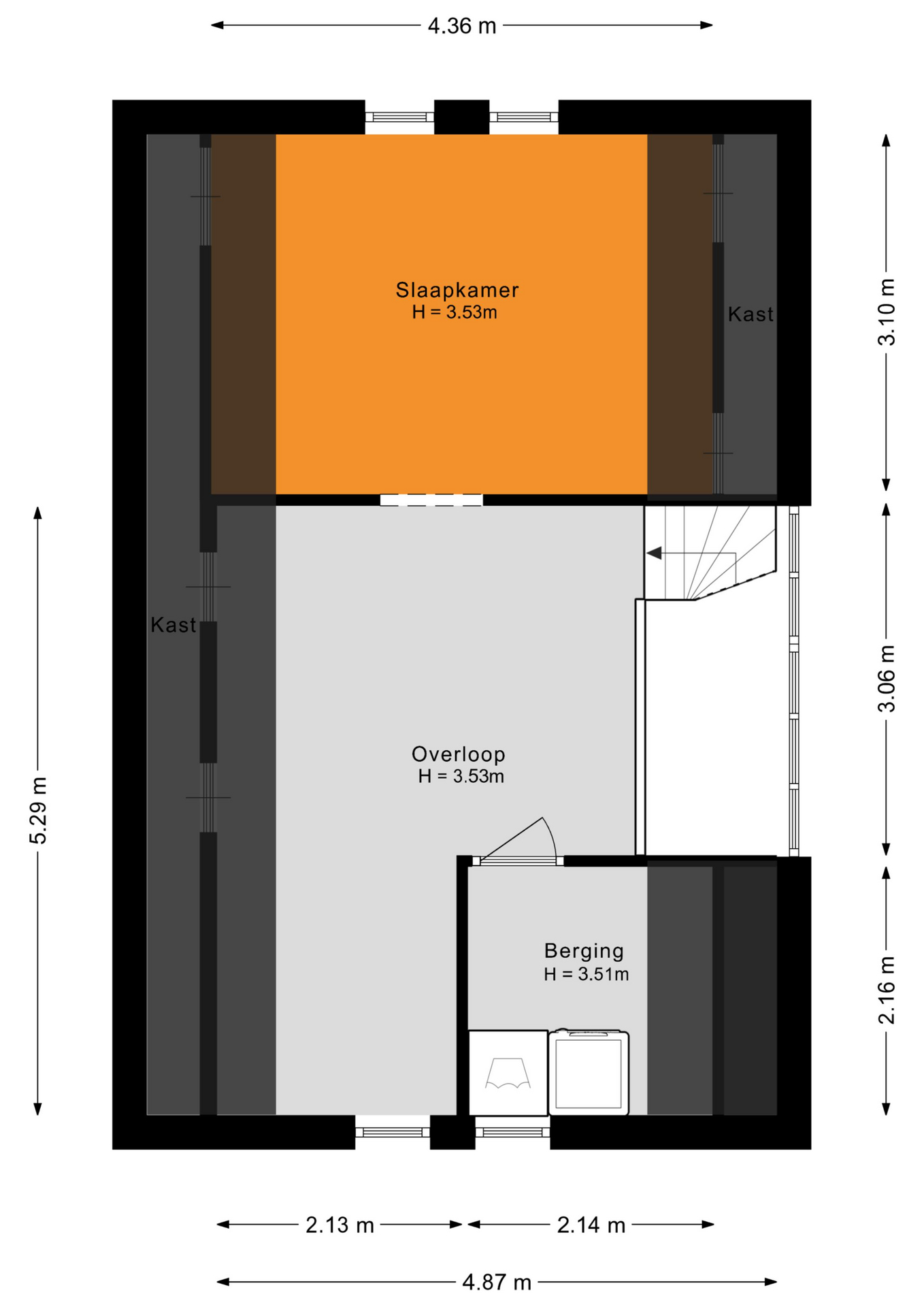
Wonen in een energiezuinige en jonge (vrijstaand) geschakelde woning doe je hier! Gelegen aan de Staalmijn in Waalwijk vind je dit moderne huis wat licht, ruimte en comfort combineert. De fraaie uitbouw vergroot de leefruimte en laat, dankzij de grote ramen, veel daglicht binnen. De luxe keuken is voorzien van alle moderne gemakken die jij je maar kunt wensen en loopt naadloos over in de ruime woonkamer, zodat je altijd met je gasten in verbinding blijft. Met vier fijne slaapkamers is er een eigen plek voor elk gezinslid. De zolder biedt, naast één slaapkamer, nog tal van mogelijkheden. Kortom: in dit huis ben je klaar voor de toekomst.
De tuin, gelegen op het westen, is een echte eyecatcher. Omgeven door het groen vind jij een heerlijk plekje in de zon. Of je nu gaat voor een ontspannen middag met een boek of een gezellige barbecue met vrienden en familie; in deze tuin zit je meer dan goed. Na een lange dag kom je tot rust in de grote en moderne badkamer, die voorzien is van een toilet, ligbad en inloopdouche.
Daarnaast beschik je nog eens over een warmtepomp, energielabel A+++, 18 zonnepanelen en twee overdekte parkeerplaatsen. Hierdoor geniet je optimaal van wooncomfort en gemak.
Je woont hier fantastisch: rustig en toch dicht bij het centrum van Waalwijk, met een speelveldje om de hoek. De A59 is snel bereikbaar, waardoor je vlot richting Tilburg of ’s-Hertogenbosch rijdt. Ook de Loonse en Drunense Duinen zijn goed bereikbaar, ideaal voor een wandeling, hardloopronde of fietstocht in het weekend.
Belangrijk om te weten:
- Jonge en energiezuinige (vrijstaand) geschakelde woning in Waalwijk;
- Beschikt over energielabel A+++, 18 zonnepanelen en een warmtepomp;
- Ruime woonkamer met veel lichtinval;
- Luxe keuken met moderne apparatuur;
- Vier slaapkamers en een ruime zolder;
- Grote badkamer met toilet, inloopdouche en ligbad;
- Alle verdiepingen voorzien van vloerverwarming (koelt in de zomer d.m.v. de warmtepomp);
- Fraaie en groene tuin op het westen;
- Dubbele carport met plek voor twee auto’s;
- Buitenzijde geschilderd en terras vernieuwd in 2025;
- Hardhouten schutting in de tuin;
- Rustig gelegen, nabij het centrum van Waalwijk en een speelveldje;
- A59 snel bereikbaar, net als de Loonse en Drunense Duinen;
- Aanvaarding in overleg.
Deze informatie is door ons met de nodige zorgvuldigheid samengesteld. Onzerzijds wordt echter geen enkele aansprakelijkheid aanvaard voor enige onvolledigheid, onjuistheid of anderszins, dan wel de gevolgen daarvan. Alle opgegeven maten en oppervlakten zijn indicatief.
De tuin, gelegen op het westen, is een echte eyecatcher. Omgeven door het groen vind jij een heerlijk plekje in de zon. Of je nu gaat voor een ontspannen middag met een boek of een gezellige barbecue met vrienden en familie; in deze tuin zit je meer dan goed. Na een lange dag kom je tot rust in de grote en moderne badkamer, die voorzien is van een toilet, ligbad en inloopdouche.
Daarnaast beschik je nog eens over een warmtepomp, energielabel A+++, 18 zonnepanelen en twee overdekte parkeerplaatsen. Hierdoor geniet je optimaal van wooncomfort en gemak.
Je woont hier fantastisch: rustig en toch dicht bij het centrum van Waalwijk, met een speelveldje om de hoek. De A59 is snel bereikbaar, waardoor je vlot richting Tilburg of ’s-Hertogenbosch rijdt. Ook de Loonse en Drunense Duinen zijn goed bereikbaar, ideaal voor een wandeling, hardloopronde of fietstocht in het weekend.
Belangrijk om te weten:
- Jonge en energiezuinige (vrijstaand) geschakelde woning in Waalwijk;
- Beschikt over energielabel A+++, 18 zonnepanelen en een warmtepomp;
- Ruime woonkamer met veel lichtinval;
- Luxe keuken met moderne apparatuur;
- Vier slaapkamers en een ruime zolder;
- Grote badkamer met toilet, inloopdouche en ligbad;
- Alle verdiepingen voorzien van vloerverwarming (koelt in de zomer d.m.v. de warmtepomp);
- Fraaie en groene tuin op het westen;
- Dubbele carport met plek voor twee auto’s;
- Buitenzijde geschilderd en terras vernieuwd in 2025;
- Hardhouten schutting in de tuin;
- Rustig gelegen, nabij het centrum van Waalwijk en een speelveldje;
- A59 snel bereikbaar, net als de Loonse en Drunense Duinen;
- Aanvaarding in overleg.
Deze informatie is door ons met de nodige zorgvuldigheid samengesteld. Onzerzijds wordt echter geen enkele aansprakelijkheid aanvaard voor enige onvolledigheid, onjuistheid of anderszins, dan wel de gevolgen daarvan. Alle opgegeven maten en oppervlakten zijn indicatief.
Overdracht
- Status
- Verkocht
- Vraagprijs
- €689.000,00 Kosten koper
Bouwvorm
- Soort woning
- Eengezinswoning
- Type woning
- Geschakelde woning
- Bouwjaar
- 2020
- Bouwvorm
- Bestaande bouw
- Ligging
- Aan rustige weg, In woonwijk
Indeling
- Woonoppervlakte
- 142 m2
- Perceeloppervlakte
- 254 m2
- Inhoud
- 529 m3
- Aantal kamers
- 5
- Aantal slaapkamers
- 4
- Aantal woonlagen
- 3
Energie
- Energielabel
- A_PPP
Overig
- Tuin
- Achtertuin, Voortuin
- Schuur / berging
- Vrijstaand hout
- Garage
- Carport, Geen garage
- Parkeerfaciliteiten
- Op eigen terrein
- Soort dak
- Zadeldak
- Permanente bewoning
- Ja
- Huidig gebruik
- Woonruimte
- Huidige bestemming
- Woonruimte
In het kort
- Type woning
- Geschakelde woning
- Bouwjaar
- 2020
- Woonoppervlakte
- 142 m2
- Aantal kamers
- 5
Vragen over dit huis?
Petra
Als Persoonlijk adviseur wonen help ik je graag verder. Bel of mail me gerust.
In de buurt
Selecteer een filter
Mogelijk interessant
Meer informatie
Kaatsheuvel
Vragen of een keer bezichtigen?
Een goede voorbereiding...
Het is verstandig om antwoord te hebben op de volgende vragen als je een bezichtiging overweegt:
- Is je financieel advies up-to-date?
- Staat je eigen huis al in verkoop?
- Komt je aankoopmakelaar mee?
Heb je nog niet overal antwoord op? Geen zorgen, ik help je graag zodat jouw zoektocht zal slagen. Bel, Whatsapp of mail mij gerust, natuurlijk ook voor het plannen van een bezichtiging!
Heb je een vraag?
Bekijk de veelgestelde vragen
Download brochure


































