Modinettestraat waalwijk 0ong
Beschikbaar
5142 EP Waalwijk
€510.000,00 Vrij op naam
LOEFF l WAALWIJK
LOEFF ligt aan de Loeffstraat (vandaar de naam) aan de noordoostkant van Waalwijk, in Baardwijk. Lokaal ook wel Bork genoemd (of Borrek op z’n Brabants). Het is een stukje Waalwijk met geschiedenis. Dat zie je meteen aan de monumentale huizen in de omgeving.
Deze bijzonder riante gezinswoning vind je aan de Winterdijk in LOEFF.
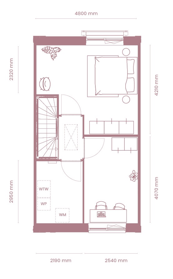
Een woning met vier lagen en vier slaapkamers, waar vind je dat nog. Op de begane grond een fijne woonkeuken van 30 m2 die aansluit op de tuin. Op de eerste verdieping tref je een ruime woonkamer aan van ongeveer 36 m2. Op de derde verdieping bevinden zich twee slaapkamers en de badkamer. Op de vierde verdieping tref je de ouderslaapkamer met ruimte voor een mooie inloopkast, de vierde slaap- of werkkamer en de technische ruimte.
De woning heeft een tuin op het zuiden en ligt aan een rustig straatje. Vind je het
leuk om je voortuin bij je woning te betrekken? Dat zet je gewoon de loopdeur open.
• Woonoppervlakte woning: 158 m2
• Kaveloppervlakte tussen 109 en 171m2 (bnr 32)
• Tuin op het zuiden
• Riante woonkeuken van circa 30 m2
• Aparte, zonnige woonkamer
• Een eigen parkeerplaats voor de woning
• Vier slaapkamers
• Badkamer met douche, wastafel en tweede toilet
• Gasloos en met comfortabele vloerverwarming
• Energielabel A+++
• Luxe afgewerkt met mooi sanitair
• Complete keuken, voorzien van vier Siemens apparaten waaronder een inductiekookplaat met afzuigsysteem en een granieten aanrechtblad
*Gemeten conform NEN 2580
LOEFF ligt aan de Loeffstraat (vandaar de naam) aan de noordoostkant van Waalwijk, in Baardwijk. Lokaal ook wel Bork genoemd (of Borrek op z’n Brabants). Het is een stukje Waalwijk met geschiedenis. Dat zie je meteen aan de monumentale huizen in de omgeving.
Deze bijzonder riante gezinswoning vind je aan de Winterdijk in LOEFF.
Een woning met vier lagen en vier slaapkamers, waar vind je dat nog. Op de begane grond een fijne woonkeuken van 30 m2 die aansluit op de tuin. Op de eerste verdieping tref je een ruime woonkamer aan van ongeveer 36 m2. Op de derde verdieping bevinden zich twee slaapkamers en de badkamer. Op de vierde verdieping tref je de ouderslaapkamer met ruimte voor een mooie inloopkast, de vierde slaap- of werkkamer en de technische ruimte.
De woning heeft een tuin op het zuiden en ligt aan een rustig straatje. Vind je het
leuk om je voortuin bij je woning te betrekken? Dat zet je gewoon de loopdeur open.
• Woonoppervlakte woning: 158 m2
• Kaveloppervlakte tussen 109 en 171m2 (bnr 32)
• Tuin op het zuiden
• Riante woonkeuken van circa 30 m2
• Aparte, zonnige woonkamer
• Een eigen parkeerplaats voor de woning
• Vier slaapkamers
• Badkamer met douche, wastafel en tweede toilet
• Gasloos en met comfortabele vloerverwarming
• Energielabel A+++
• Luxe afgewerkt met mooi sanitair
• Complete keuken, voorzien van vier Siemens apparaten waaronder een inductiekookplaat met afzuigsysteem en een granieten aanrechtblad
*Gemeten conform NEN 2580
Overdracht
- Status
- Beschikbaar
- Koopsom
- €510.000,00 Vrij op naam
Bouwvorm
- Soort woning
- Eengezinswoning
- Type woning
- Tussenwoning
- Bouwjaar
- 2026
- Bouwvorm
- Nieuwbouw
- Ligging
- Aan rustige weg, In woonwijk
Indeling
- Woonoppervlakte
- 158 m2
- Perceeloppervlakte
- 0 m2
- Inhoud
- 411 m3
- Aantal kamers
- 6
- Aantal slaapkamers
- 4
- Aantal woonlagen
- 4
Energie
- Energielabel
- A_PPP
Overig
- Tuin
- Voortuin
- Schuur / berging
- Vrijstaand hout
- Garage
- Geen garage
- Parkeerfaciliteiten
- Openbaar parkeren, Op eigen terrein
- Soort dak
- Plat dak
- Permanente bewoning
- Ja
- Huidig gebruik
- Woonruimte
- Huidige bestemming
- Woonruimte
In het kort
- Type woning
- Tussenwoning
- Bouwjaar
- 2026
- Woonoppervlakte
- 158 m2
- Aantal kamers
- 6
Vragen over dit huis?

Petra
Als Persoonlijk adviseur wonen help ik je graag verder. Bel of mail me gerust.
In de buurt
Selecteer een filter
Mogelijk interessant
Meer informatie
Kaatsheuvel

Vragen of een keer bezichtigen?
Een goede voorbereiding...
Het is verstandig om antwoord te hebben op de volgende vragen als je een bezichtiging overweegt:
- Is je financieel advies up-to-date?
- Staat je eigen huis al in verkoop?
- Komt je aankoopmakelaar mee?
Heb je nog niet overal antwoord op? Geen zorgen, ik help je graag zodat jouw zoektocht zal slagen. Bel, Whatsapp of mail mij gerust, natuurlijk ook voor het plannen van een bezichtiging!
Heb je een vraag?
Bekijk de veelgestelde vragen